- 外観
- 8階建ての建物
- 外観
- 高層マンションのような外観
- エントランス
- バリアフリーのエントランス
- 受付
- ホテルのような受付
- ラウンジ
- 大きな窓で明るいラウンジ
- ダイニング
- 車椅子でも移動しやすい広い空間
- ダイニング
- 車椅子でも移動しやすい広い空間
- カフェコーナー
- ゆっくりくつろげるカフェコーナー
- 居室
- 個室タイプ
- 居室
- 2人部屋タイプ
- 居室
- 広い居室
- ゲストルーム
- 家族との面会に利用可能
- ルーフテラス
- 晴れた日は日光浴が可能
- エレベータホール
- 広々としたエレベーターホール
- 口コミ
- 料金プラン
- 施設の紹介
- 写真
- アクセス
- 空室状況
- 個室
- 要確認
2026年01月16日時点
- 料金
- 住所
- 兵庫県神戸市垂水区宮本町1-29
- アクセス
- JR山陽本線 垂水駅 徒歩2分
- 入居条件
- 自立要支援1要支援2要介護1要介護2要介護3要介護4要介護565歳以上認知症 受け入れ相談可保証人 必須生活保護不可
- こだわり
- 夜間有人居室トイレ付き看取り対応可病院併設高級・プレミアム2人部屋あり
- この施設のおすすめ・特徴
- 駅徒歩2分の好立地と充実した併設施設による安心感
- 個室中心の居住空間と眺望の良さ
- 医療連携と幅広い受け入れ体制
チャームスイート神戸垂水の口コミ・評判
総合点数
- 施設・入居者の雰囲気
- 4.5
- スタッフの雰囲気
- 4.5
- 周辺環境・アクセス性
- 4.5
- 料金・費用の妥当性
- 3.0
- 居室・共用設備
- 4.0
- 介護・看護・医療サービス
- 4.0
- 食事・メニュー
- 3.0
- 掲載基準について
- お寄せいただいた口コミは、信頼性及び品質の確保・向上のため、審査の上で承認した内容を掲載しております。
- 投稿日:
- 2024年12月31日
| ご入居者の状態 | ||||||
|---|---|---|---|---|---|---|
| 年齢 | 性別 | 続柄 | 要介護度 | ADLの状態 | 認知症の度合い | 既往歴 |
| 89歳 | 女性 | 父母 | 要支援2 | 杖が必要 | なし | 心臓病 |
- 施設・入居者の雰囲気
- 5
施設が新しく見晴らしもよくいい雰囲気
- スタッフの雰囲気
- 5
若い方が多く明るくていい感じ
- 周辺環境・アクセス性
- 5
駅からも実家からも近く、買い物も便利。
- 料金・費用の妥当性
- 3
お高いですが、設備も良いのでいいと思います。
- 居室・共用設備
- 5
南向きで日当たりもよく、景観も良い、、
- 介護・看護・医療サービス
- 4
訪問医は以前からお世話になっている先生に引き続きお願いしています。
- 食事・メニュー
- 3
別料金になりますが、定期的に少しよいお料理がある。
- 投稿日:
- 2024年10月08日
| ご入居者の状態 | ||||||
|---|---|---|---|---|---|---|
| 年齢 | 性別 | 続柄 | 要介護度 | ADLの状態 | 認知症の度合い | 既往歴 |
| 88歳 | 男性 | 父母 | 要支援1 | 杖が必要 | なし | 高血圧 |
- 施設・入居者の雰囲気
- 4
とてもきれいな建物でした。職員の方は明るくテキパキとお仕事をされていて好感がもてました。入居者の方々もお元気そうな方が多く、生き生きと若々しく生活されているように感じました。
- スタッフの雰囲気
- 4
入所者の方は高齢でお耳が悪い方も多そうでしたが、根気強く何度もゆっくり大きな声でお話されていて、しっかりとコミュニケーションが取れている印象を受けました。
- 周辺環境・アクセス性
- 4
JR山陽本線の垂水駅から徒歩で2分程度ですので、家族が訪問する際にとても便利だと感じました。家族の全員が車を運転するわけではないので、駅ちかはとても助かります。
- 料金・費用の妥当性
- 3
料金に関しては、正直少しお高いと思いますが、サービスにかかる人件費や施設の維持にかかる費用を考慮すると妥当なのかもしれません。
- 居室・共用設備
- 3
広いエントランスホールは開放的でとてもきれいでした。居室に関しては、十分な広さでお気に入りの家具を置けるスペースもあるので、快適に生活できるのではないかと感じました。
- 介護・看護・医療サービス
- 4
入居者の日常における健康管理や健康相談に応じてくれるとのことで、安心して生活できそうだと感じました。また協力医療機関への連絡体制も整っているとのことでした。私の親はまだ大丈夫ですが、認知症や寝たきりになったときでもサポートがあるようです。
- 食事・メニュー
- 3
食事に関しては、栄養面だけでなく彩りなどを考え、食欲がでるように配慮されているように感じました。また、季節の行事に応じて、入居者の方がそれを感じて楽しめるメニューの工夫もあるようです。
チャームスイート神戸垂水の料金プラン
Aタイププラン1
- 入居時
- 0円
- 月額料金
- 279,290円
| 入居時費用内訳 | |
|---|---|
| 入居一時金 | 0円 |
| その他 | 0円 |
| 月額料金内訳 | |
|---|---|
| 賃料 | 166,000円 |
| 管理費 | 55,000円 |
| 食費 | 58,290円 |
| 水道光熱費 | 0円 |
| 上乗せ介護費 | 0円 |
| その他 | 0円 |
Aタイププラン2
- 入居時
- 3,000,000円
- 月額料金
- 229,290円
| 入居時費用内訳 | |
|---|---|
| 入居一時金 | 3,000,000円 |
| その他 | 0円 |
| 月額料金内訳 | |
|---|---|
| 賃料 | 116,000円 |
| 管理費 | 55,000円 |
| 食費 | 58,290円 |
| 水道光熱費 | 0円 |
| 上乗せ介護費 | 0円 |
| その他 | 0円 |
Aタイププラン3
- 入居時
- 6,000,000円
- 月額料金
- 179,290円
| 入居時費用内訳 | |
|---|---|
| 入居一時金 | 6,000,000円 |
| その他 | 0円 |
| 月額料金内訳 | |
|---|---|
| 賃料 | 66,000円 |
| 管理費 | 55,000円 |
| 食費 | 58,290円 |
| 水道光熱費 | 0円 |
| 上乗せ介護費 | 0円 |
| その他 | 0円 |
Bタイププラン1
- 入居時
- 0円
- 月額料金
- 432,790円
| 入居時費用内訳 | |
|---|---|
| 入居一時金 | 0円 |
| その他 | 0円 |
| 月額料金内訳 | |
|---|---|
| 賃料 | 292,000円 |
| 管理費 | 82,500円 |
| 食費 | 58,290円 |
| 水道光熱費 | 0円 |
| 上乗せ介護費 | 0円 |
| その他 | 0円 |
Bタイププラン2
- 入居時
- 3,000,000円
- 月額料金
- 382,790円
| 入居時費用内訳 | |
|---|---|
| 入居一時金 | 3,000,000円 |
| その他 | 0円 |
| 月額料金内訳 | |
|---|---|
| 賃料 | 242,000円 |
| 管理費 | 82,500円 |
| 食費 | 58,290円 |
| 水道光熱費 | 0円 |
| 上乗せ介護費 | 0円 |
| その他 | 0円 |
Bタイププラン3
- 入居時
- 6,000,000円
- 月額料金
- 332,790円
| 入居時費用内訳 | |
|---|---|
| 入居一時金 | 6,000,000円 |
| その他 | 0円 |
| 月額料金内訳 | |
|---|---|
| 賃料 | 192,000円 |
| 管理費 | 82,500円 |
| 食費 | 58,290円 |
| 水道光熱費 | 0円 |
| 上乗せ介護費 | 0円 |
| その他 | 0円 |
Cタイプ1人利用プラン1
- 入居時
- 0円
- 月額料金
- 500,290円
| 入居時費用内訳 | |
|---|---|
| 入居一時金 | 0円 |
| その他 | 0円 |
| 月額料金内訳 | |
|---|---|
| 賃料 | 332,000円 |
| 管理費 | 110,000円 |
| 食費 | 58,290円 |
| 水道光熱費 | 0円 |
| 上乗せ介護費 | 0円 |
| その他 | 0円 |
Cタイプ1人利用プラン2
- 入居時
- 6,000,000円
- 月額料金
- 400,290円
| 入居時費用内訳 | |
|---|---|
| 入居一時金 | 6,000,000円 |
| その他 | 0円 |
| 月額料金内訳 | |
|---|---|
| 賃料 | 232,000円 |
| 管理費 | 110,000円 |
| 食費 | 58,290円 |
| 水道光熱費 | 0円 |
| 上乗せ介護費 | 0円 |
| その他 | 0円 |
Cタイプ1人利用プラン3
- 入居時
- 12,000,000円
- 月額料金
- 300,290円
| 入居時費用内訳 | |
|---|---|
| 入居一時金 | 12,000,000円 |
| その他 | 0円 |
| 月額料金内訳 | |
|---|---|
| 賃料 | 132,000円 |
| 管理費 | 110,000円 |
| 食費 | 58,290円 |
| 水道光熱費 | 0円 |
| 上乗せ介護費 | 0円 |
| その他 | 0円 |
Cタイプ2人利用プラン1
- 入居時
- 0円
- 月額料金
- 558,580円
| 入居時費用内訳 | |
|---|---|
| 入居一時金 | 0円 |
| その他 | 0円 |
| 月額料金内訳 | |
|---|---|
| 賃料 | 332,000円 |
| 管理費 | 110,000円 |
| 食費 | 116,580円 |
| 水道光熱費 | 0円 |
| 上乗せ介護費 | 0円 |
| その他 | 0円 |
Cタイプ2人利用プラン2
- 入居時
- 3,000,000円
- 月額料金
- 508,580円
| 入居時費用内訳 | |
|---|---|
| 入居一時金 | 3,000,000円 |
| その他 | 0円 |
| 月額料金内訳 | |
|---|---|
| 賃料 | 282,000円 |
| 管理費 | 110,000円 |
| 食費 | 116,580円 |
| 水道光熱費 | 0円 |
| 上乗せ介護費 | 0円 |
| その他 | 0円 |
Cタイプ2人利用プラン3
- 入居時
- 6,000,000円
- 月額料金
- 458,580円
| 入居時費用内訳 | |
|---|---|
| 入居一時金 | 6,000,000円 |
| その他 | 0円 |
| 月額料金内訳 | |
|---|---|
| 賃料 | 232,000円 |
| 管理費 | 110,000円 |
| 食費 | 116,580円 |
| 水道光熱費 | 0円 |
| 上乗せ介護費 | 0円 |
| その他 | 0円 |
ここに記載の料金は、参考価格です。正確な料金は施設にお問い合わせください。
料金プランに関する説明
・水道光熱費:管理費に含まれる
・食費は一部軽減税率を適用
その他
・個別付き添い代:1,650円/30分
・理美容代、おむつ等消耗品代、医療費等は実費
・生活支援費:66,000円/月(自立の方・入居中に自立となった方の場合)
居室設備
トイレ、洗面、収納、台所(一部)、浴室(一部)
入居金の償却・返還制度
体験入居・ショートステイ
| 体験入居 | 体験入居の内容 |
|---|---|
| あり | - |
| ショートステイ | |
| - |

この施設を見た人がよく見る近隣施設
介護付き有料老人ホームの介護保険自己負担額
| 要支援1 | 要支援2 | 要介護1 | 要介護2 | 要介護3 | 要介護4 | 要介護5 | |
|---|---|---|---|---|---|---|---|
| 1割負担 | 5,786円 | 9,897円 | 17,138円 | 19,256円 | 21,469円 | 23,525円 | 25,707円 |
| 2割負担 | 11,572円 | 19,794円 | 34,276円 | 38,513円 | 42,939円 | 47,050円 | 51,414円 |
| 3割負担 | 17,359円 | 29,691円 | 51,414円 | 57,769円 | 64,409円 | 70,575円 | 77,121円 |
チャームスイート神戸垂水とは
チャームスイート神戸垂水は、JR「垂水」駅と山陽電鉄「山陽垂水」駅から徒歩約2分というアクセスに恵まれた場所に位置する、介護付有料老人ホームです。
全95室が個室と夫婦部屋で構成されており、プライバシーを重視しながら快適な生活を送れる環境が提供されています。
2024年10月1日に開設されたホームで、自立の方から要介護5の方まで、幅広い介護度の方が入居対象となっています。
ホーム内には提携しているクリニックや薬局、保育所も併設されており、日々の生活における安心感が期待できます。
南側は海岸に近く、明石海峡大橋を望めるロケーションも魅力の一つです。
近隣には駅構内や周辺に買い物施設、大型アウトレットモールなどもあり、生活利便性も高いと言えるでしょう。
チャームスイート神戸垂水のおすすめ・特徴
- 駅徒歩2分の好立地と充実した併設施設による安心感
当施設は、JRと山陽電鉄の2つの駅から徒歩わずか約2分という非常に便利な立地です。
駅近であることは、家族や友人が気軽に訪問しやすいだけでなく、入居者自身も外出の機会を持ちやすいというメリットがあります。また、当ホームの大きな特徴として、クリニック、薬局、小規模保育園が併設されている点が挙げられます。
日常的な健康相談や急な体調不良への対応、薬の受け取りなどがスムーズに行えることは、入居者とその家族にとって大きな安心材料となるでしょう。さらに、地域の子どもたちとの交流が期待できる環境も魅力の一つです。
- 個室中心の居住空間と眺望の良さ
当ホームは、全95室がプライベートな個室または夫婦部屋として用意されています。
これにより、入居者は自身の生活リズムを尊重しながら、落ち着いた時間を過ごすことができます。特に、南側の居室からは明石海峡大橋を眺めることができるという素晴らしいロケーションが特徴です。
開放的な景色は、日々の生活に潤いと安らぎを与えてくれるでしょう。居室の広さは18平米~37平米となっており、夫婦での入居が可能な部屋も用意されています。
- 医療連携と幅広い受け入れ体制
当施設は、メディクス舞子ガーデンクリニックをはじめとする複数の医療機関と連携し、入居者の健康管理をサポートする体制を整えています。
定期的な健康相談や訪問診療、往診、予防接種、健康診断などが提供されるほか、緊急時の対応や入退院の付き添いなども連携して行われます。また、認知症や寝たきりの方についても、まずは相談が可能とされており、幅広い医療ニーズに対応できる体制が構築されていると考えられます。
インシュリン投与やストーマ、たん吸引など、様々な医療処置が必要な方の受け入れについても相談に応じています。
入居条件
その他条件
・単身高齢者世帯
または
・高齢者+同居者(配偶者/60歳以上の親族/要介護・要支援認定を受けている60歳未満の親族/特別な理由により同居させる必要があると知事等が認める者)
(「高齢者」とは、60歳以上の者または要介護・要支援認定を受けている60歳未満の者をいう。)
医療・看護面の受け入れ体制
医療面の受け入れ
認知症の症状別受け入れ
感染症の受け入れ
チャームスイート神戸垂水の職員体制
介護付有料老人ホームの最低人員基準は「3対1」 人員配置「3:1基準」では、介護付有料老人ホームに入居する要支援2以上の入居者3人に対して1人以上の介護職員または看護職員の配置が義務付けられています。
緊急時の対応
当ホームでは、スタッフが24時間体制で常駐しており、夜間を含む緊急時にも対応できる体制を整えています。
各居室には緊急通報装置が設置されており、異常発生時には速やかにスタッフが駆けつけます。
協力医療機関との連携により、必要に応じて救急搬送などの医療支援が行われます。
協力医療機関
| 医療法人社団 和啓会 メディクス舞子クリニック | |
|---|---|
| 診療科目 | 内科 |
| 協力内容 | (1)ホーム内における定期健康相談及び訪問診療の実施
|
| 医療法人慶春会 みなとクリニック | |
|---|---|
| 診療科目 | 内科 |
| 協力内容 | (1)ホーム内における定期健康相談及び訪問診療の実施
|
| 医療法人社団 神戸デンタルクリニック | |
|---|---|
| 診療科目 | 歯科 |
| 協力内容 | (1)入居者が平常の歯科治療(口腔ケア)を要する際に、訪問診療等の対応、指示等を行う。
|
チャームスイート神戸垂水の生活情報
食事
| 食事する場所 | ダイニング・食堂 |
|---|---|
| 調理する場所 | 施設内厨房 |
| 治療食・制限食の個別対応 | 個別対応 要相談 刻み食 要相談 ミキサー食 要相談 治療食 要相談 |
| 食事の説明 | - |
レクリエーション
当ホームでは、入居者の生活に彩りを添え、心身の活性化を図るため、様々なレクリエーション活動が提供されています。
ホームページの「暮らしのアルバム」では、イベントや日常のレクリエーションの様子が写真で紹介されており、歌唱や体操など、入居者同士が交流しながら楽しめる活動が行われていることが分かります。
これらの活動は、入居者の孤立を防ぎ、生きがいや楽しみを見つけるきっかけとなることが期待されます。
行事・イベント
当施設では、季節ごとのイベントや誕生日会などが開催され、入居者の日々の生活に変化と潤いを提供しています。
行事やイベントは、入居者同士やスタッフとの交流を深め、楽しい思い出を作る機会となるでしょう。
チャームスイート神戸垂水の外観・内観・居室
8階建ての建物
高層マンションのような外観
バリアフリーのエントランス
ホテルのような受付
大きな窓で明るいラウンジ
車椅子でも移動しやすい広い空間
車椅子でも移動しやすい広い空間
ゆっくりくつろげるカフェコーナー
個室タイプ
2人部屋タイプ
広い居室
家族との面会に利用可能
晴れた日は日光浴が可能
広々としたエレベーターホール
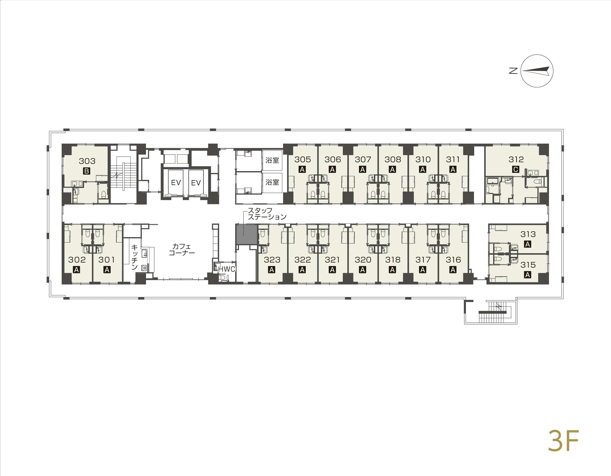
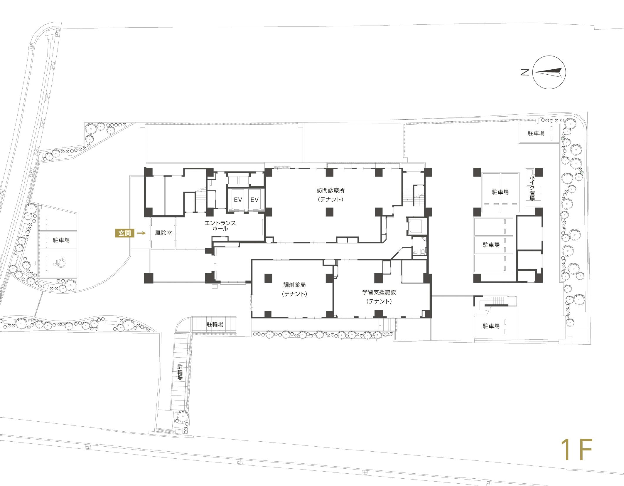
施設全体間取図
所在地(チャームスイート神戸垂水)
| 住所 | 〒655-0028兵庫県神戸市垂水区宮本町1-29 |
|---|---|
| アクセス | JR山陽本線 垂水駅 徒歩2分 【お車をご利用の場合】 第二神明道路「名谷IC」より4km |
| 駐車場有無 | - |
チャームスイート神戸垂水の近くの施設
施設情報
| 施設名称(ヨミ) | チャームスイート神戸垂水(チャームスイートタルミ) | |
|---|---|---|
| 施設所在地 | 〒655-0028 兵庫県神戸市垂水区宮本町1-29 | |
| 施設種別 | 介護付き有料老人ホーム | |
| 建物構造 | 鉄筋コンクリート造 | |
| 入居定員 | 100名 | |
| 介護事業所番号 | - | |
| 損害賠償保険 | - | |
| 地上階・地下階 | 地上8階 | |
| 敷地面積 | 2029.2㎡ | |
| 延床面積 | 5721.1㎡ | |
| 居室総数 | 95室 | |
| 居室面積 | 18.6 〜 37.4㎡ | |
| 土地の権利形態 | 定期借地契約 | |
| 建物の権利形態 | 所有権 | |
| 居住契約の権利形態 | 利用権方式 | |
| 建築年月日 | - | |
| 開設年月日 | 2024年10月01日 | |
| 消火設備 | - | |
| 耐火建築物基準 | - | |
| 共用施設設備 | 食堂・機能訓練室、浴室・脱衣室、居間(カフェコーナー・ラウンジ)、共同便所・手洗、キッチン | |
| 介護機関(生活保護の介護扶助を行う機関)の指定 | 生活保護不可 | |
| 運営事業者名 | 株式会社チャーム・ケア・コーポレーション | ||||
|---|---|---|---|---|---|

※ 掲載している情報は自治体が公表している情報を引用しています。現状とは異なっていたり、情報に誤りがある場合があります。
正確な情報については、施設にお問い合わせください。
出典:神戸市「有料老人ホーム一覧」
よくある質問
- Q
チャームスイート神戸垂水の現在の空室状況が知りたいのですが?
- Aチャームスイート神戸垂水の空室状況を確認したい場合は、こちらより最新の空室状況を確認ください。
- Q
チャームスイート神戸垂水は認知症でも、入居することはできますか?
- Aチャームスイート神戸垂水では認知症の受け入れについてご相談することが可能です。
ご状況や認知症の程度をヒアリングし、実際に入居が可能かどうかを安心介護紹介センターの入居相談員がお調べいたしますので、こちらのお申し込みフォームからお気軽にご相談ください。
- Q
チャームスイート神戸垂水の周辺の老人ホーム・介護施設も掲載していますか?
- A安心介護紹介センターではチャームスイート神戸垂水の周辺(神戸市垂水区)の施設を111件掲載しています。
神戸市垂水区の老人ホーム・介護施設一覧でご紹介していますので、ぜひご覧ください。
【ご入居を検討される方へ】
複数の施設を比較検討することが施設選びに失敗しないための大切なポイントです。安心介護紹介センターでは、神戸市垂水区周辺の施設から、ご自身の希望やご状況、予算などを踏まえ、ぴったりの施設を提案させていただきます。もしも施設選びに不安を抱えているなら、介護福祉士や高齢者住まいアドバイザー等の資格を有している入居相談員がご相談に乗りますので、こちらの入居相談フォームよりお気軽にお問い合わせください。
- Q
チャームスイート神戸垂水の費用はいくらぐらいかかるの?
- Aチャームスイート神戸垂水に入居した場合にかかる費用は、以下の通りです。
入居一時金: 0.0万円〜1,200.0万円
月額費用: 18.0万円〜55.9万円
なお、チャームスイート神戸垂水がある神戸市垂水区の相場は以下のようになっています。
入居一時金: 平均679.6万円
月額利用料: 平均23.0万円
ご予算などを踏まえて神戸市垂水区周辺で老人ホーム・介護施設の比較検討をされたい場合は、安心介護紹介センターまでお問い合わせください。経験豊富な入居相談員が、ご状況や希望条件、金銭的な事情などを踏まえて、あなたにぴったりの施設をご提案させていただきます。
- Q
チャームスイート神戸垂水の入居条件は?
- Aチャームスイート神戸垂水に入居する場合、下記の条件に当てはまっている必要があります。
年齢: 65歳以上
要介護度: 自立,要支援1,要支援2,要介護1,要介護2,要介護3,要介護4,要介護5
認知症: 受け入れ相談可
医療提供体制や在籍している有資格者の人数といった詳しい条件については、チャームスイート神戸垂水の施設情報ページをご覧ください。
神戸市垂水区(兵庫県)の費用相場
| 入居時料金あり | 入居時料金 | 月額料金 |
|---|---|---|
| 平均値 | 679.6万円 | 23.0万円 |
| 中央値 | 30.0万円 | 19.4万円 |
| 入居時料金なし | 月額料金 |
|---|---|
| 平均値 | 20.5万円 |
| 中央値 | 14.7万円 |



