- 外観
- 2階建ての建物
- エントランス
- バリアフリーのエントランス
- 食堂
- 明るい配色のスペース
- 娯楽室
- ゆっくりくつろげる憩いの場
- キッチンスペース
- ご家族様の調理スペース
- 居室
- プライバシーが守られた空間
- 居室
- 居室玄関には固定ベンチ設置
- 居室
- 居室内で物干し出来る仕様
- クローゼット
- 居室に設置されているクローゼット
- トイレ
- 車椅子で利用しやすい広めのトイレ
- 共用トイレ
- 車椅子利用がしやすいゆったりスペース
- 洗面台
- 居室に設置されている洗面台
- 洗面台
- 車椅子でも利用しやすい洗面台
- 浴室
- 機械浴
- 緊急コール
- 各居室に設置
- 口コミ
- 料金プラン
- 施設の紹介
- 写真
- アクセス
- 空室状況
- 個室
- 要確認
- 料金
- 住所
- 東京都三鷹市北野2-3-9
- アクセス
- 京王線 千歳烏山駅 バス 下本宿バス停より徒歩5分
- 入居条件
- 要介護1要介護2要介護3要介護4要介護560歳以上保証人 必須全国から入居可
- こだわり
- 夜間有人居室トイレ付き機械浴・特殊浴
- この施設のおすすめ・特徴
- 快適な住環境が揃った施設
- 安心のサポート体制
- 介護のプロフェッショナルによる信頼と実績
リリィパワーズレジデンス三鷹北野けやき館の口コミ・評判
総合点数
- 施設・入居者の雰囲気
- 3.0
- スタッフの雰囲気
- 4.0
- 周辺環境・アクセス性
- 3.0
- 料金・費用の妥当性
- 4.0
- 居室・共用設備
- 3.0
- 介護・看護・医療サービス
- 3.0
- 食事・メニュー
- 3.0
- 掲載基準について
- お寄せいただいた口コミは、信頼性及び品質の確保・向上のため、審査の上で承認した内容を掲載しております。
- 投稿日:
- 2025年01月27日
| ご入居者の状態 | ||||||
|---|---|---|---|---|---|---|
| 年齢 | 性別 | 続柄 | 要介護度 | ADLの状態 | 認知症の度合い | 既往歴 |
| 84歳 | 女性 | 本人 | 要介護1 | 杖が必要 | なし | がん |
- 施設・入居者の雰囲気
- 3
高齢者が多く平均年齢は90代と聞き、ここは無理かなと思いました。
- スタッフの雰囲気
- 4
明るくテキパキと対応していただき良いと感じました。施設の説明を丁寧にしていただきよく理解できました。
- 周辺環境・アクセス性
- 3
住宅街で静かな落ち着いた環境であったと思います。アクセスが悪く車がないと通うのは大変だと思います。
- 料金・費用の妥当性
- 4
リーズナブルに設定されていて助かります。大変シンプルな設定になっているため、ある程度動ける人にとっては物足りなさを感じるのではないでしょうか。
- 居室・共用設備
- 3
収納スペースにゆとりがあり、入居者の工夫で便利に過ごせるように思います。食堂その他、余分なものがなく大変シンプルに設定されていました。
- 介護・看護・医療サービス
- 3
介護士の方が3名で、他の施設と掛け持ちと聞きました。忙しい思いをされているようでやや不安を感じました。
- 食事・メニュー
- 3
食事の時間帯ではなかったため、具体的にはわかりません。部屋には調理器具はなく共用だと聞きましたが、殆ど使われていない様子でした。
リリィパワーズレジデンス三鷹北野けやき館の料金プラン
基本プラン
- 入居時
- 150,000円
- 月額料金
- 193,420円
| 入居時費用内訳 | |
|---|---|
| 入居一時金 | 0円 |
| その他 | 150,000円 |
| 月額料金内訳 | |
|---|---|
| 賃料 | 75,000円 |
| 管理費 | 30,000円 |
| 食費 | 58,170円 |
| 水道光熱費 | - |
| 上乗せ介護費 | 0円 |
| その他 | 30,250円 |
ここに記載の料金は、参考価格です。正確な料金は施設にお問い合わせください。
料金プランに関する説明
入居時のその他料金:敷金(家賃2か月分)
食費:朝食(423円)・昼食(667円)は軽減税率(8%)の対象。夕食(849円)は軽減税率対象外(10%)✕30日で計算
その他には生活支援サービス費が含まれる
水道光熱費等が別途契約
家財保険(賃貸住宅総合/2年更新)への加入も必要
居室設備
トイレ・洗面・収納

この施設を見た人がよく見る近隣施設
リリィパワーズレジデンス三鷹北野けやき館とは
千歳烏山駅よりバスに乗り、下本宿バス停より徒歩5分のところにあるリリィパワーズレジデンス三鷹北野【けやき館】は、「緑と水の公園都市」のキャッチフレーズをもつ三鷹市のサービス付き高齢者向け住宅です。
東京23区と隣接する場所でありながらも自然が豊かな場所にあり、わが家のような快適な住宅でこれまでの生活ペースに合わせた暮らしができます。
いつまでも自分らしく日々の生活を安心して送れるように、という願いのもと完成したワンルーム18平米、バリアフリー完備の施設内には、陽当たりのいい食堂や談話室があります。
安心して暮らせる快適な住環境で、医療、介護のサポートを受けながら自分らしく暮らせます。
介護保険以外のサービスも受けることができるため、一人ひとりのライフスタイルに合わせて自ら生活環境を選ぶ自由度の高い暮らしができます。
リリィパワーズレジデンス三鷹北野けやき館のおすすめ・特徴
- 快適な住環境が揃った施設
居室はワンルーム18.30平米の広々とした作りでエアコン完備、引き戸の温水付きトイレやシャワーヘッド付き洗面台、大きな収納スペースがあります。
入り口には備え付けベンチがあり、靴の履き替えが楽にできます。共用部分のキッチンや談話室は明るく開放的で、入居者同士の憩いの場になっています。
手すりがついた介護用入浴設備も充実しているため、機能性と快適性にも優れたお風呂で、ゆっくりと入浴が楽しめます。スタッフや連携機関の担当者とチャット機能ができるインターネット環境があるため、緊急時の連絡や情報交流が迅速です。
快適で安全な住環境で、自分のペースに合わせた良質な暮らしができます。 - 安心のサポート体制
24時間365日対応の訪問介護事業所を併設しているため、専門資格をもつ介護スタッフが常駐して柔軟に対応しています。
定期的な見守りや声かけを行い、緊急時の対応を迅速に行います。
訪問看護による療養上のお世話や病状に応じた適切な診療補助が受けられるため、不安を感じることなく、日々の健康管理ができます。
訪問介護事業所と医療機関の連携による訪問診療など医療面でのサポートがあり、安定した在宅療養生活を送ることが可能です。入居様の意思を尊重し、家族の意向を確認しながらの、食事や入浴介助、掃除、洗濯といった日常の生活支援を行っています。
一人ひとりの生活スタイルに合ったサポート体制が整っているため、介護保険が使えない有料サービスにも対応しています。
併設の事務所にはいざというときのための物品の備えをするなど、医療と介護サービスの安心のサポート体制が整っているので、安心して充実した生活が送れます。 - 介護のプロフェッショナルによる信頼と実績
訪問介護や訪問看護、通所介護、サービス付き高齢者向け住宅の運営など幅広い事業を全国に展開してきた長年のノウハウがあるため、信頼と実績のあるサービスが受けられます。
介護度の高い方や認知症の症状が進んでいる方はもちろんですが、要介護認定を受けてない方も自立した日常生活を営めるサポートが受けられます。
サービス計画書を作成することにより、必要なサービスが具体化されて一人ひとりが必要とするサポートが適切に行われます。
入居者はもちろん家族も悩みごとや疑問があればいつでもケアマネジャーに相談ができるため、安心して暮らすことができます。
入居条件
その他条件
60歳以上の方、または介護認定を受けている60歳未満の方
要保証人
・自社基準の入居審査あり
・65歳以下で三親等以内の方をお願いしております。
・連帯保証人、身元引受人(連帯保証人と共通可)を立てていただくこと
・該当する方がいない場合はご相談ください。
医療・看護面の受け入れ体制
医療面の受け入れ
認知症の症状別受け入れ
感染症の受け入れ
緊急時の対応
入居者の日々の様子や健康状態などがWebを通して簡単に確認できるシステムが整っています。
緊急時の対応は、24時間365日体制で常駐する訪問介護事業所の専門介護スタッフが行います。
チャットサービスの活用で、関連機関との連携がスムーズに行えます。
協力医療機関
| 医療法人社団壮仁会 三鷹あゆみクリニック | |
|---|---|
| 診療科目 | 内科、神経内科 |
| 協力内容 | |
リリィパワーズレジデンス三鷹北野けやき館の生活情報
食事
| 食事する場所 | - |
|---|---|
| 調理する場所 | - |
| 治療食・制限食の個別対応 | 個別対応 刻み食 ミキサー食 治療食 |
| 食事の説明 | 介護保険サービス対象外の有料サービスが利用できるので、ライフスタイルに合わせて、食事も自由にカスタマイズできるのが魅力です。 |
リリィパワーズレジデンス三鷹北野けやき館の外観・内観・居室
2階建ての建物
バリアフリーのエントランス
明るい配色のスペース
ゆっくりくつろげる憩いの場
ご家族様の調理スペース
プライバシーが守られた空間
居室玄関には固定ベンチ設置
居室内で物干し出来る仕様
居室に設置されているクローゼット
車椅子で利用しやすい広めのトイレ
車椅子利用がしやすいゆったりスペース
居室に設置されている洗面台
車椅子でも利用しやすい洗面台
機械浴
各居室に設置
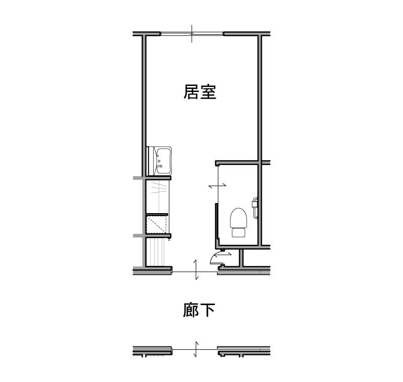
施設全体間取図
所在地(リリィパワーズレジデンス三鷹北野けやき館)
| 住所 | 〒181-0003東京都三鷹市北野2-3-9 |
|---|---|
| アクセス | 京王線 千歳烏山駅 バス 下本宿バス停より徒歩5分 【お車をご利用の場合】 中央自動車道「高井戸IC」より3.5km |
| 駐車場有無 | - |
周辺環境について
施設からの距離: 徒歩4分
施設からの距離: 徒歩4分
施設からの距離: 徒歩4分
施設からの距離: 徒歩5分
リリィパワーズレジデンス三鷹北野けやき館の近くの施設
施設情報
| 施設名称(ヨミ) | リリィパワーズレジデンス三鷹北野けやき館(リリィパワーズレジデンスミタカキタノケヤキカン) | |
|---|---|---|
| 施設所在地 | 〒181-0003 東京都三鷹市北野2-3-9 | |
| 施設種別 | サービス付き高齢者向け住宅 | |
| 建物構造 | 木造 | |
| 入居定員 | 32名 | |
| 介護事業所番号 | - | |
| 損害賠償保険 | - | |
| 地上階・地下階 | 地上2階建 | |
| 敷地面積 | - | |
| 延床面積 | - | |
| 居室総数 | 32室 | |
| 居室面積 | 18.3 〜 ㎡ | |
| 土地の権利形態 | 定期借地契約 | |
| 建物の権利形態 | 定期借家契約 | |
| 居住契約の権利形態 | 建物賃貸借契約 | |
| 建築年月日 | 2014年12月20日 | |
| 開設年月日 | 2015年02月01日 | |
| 消火設備 | - | |
| 耐火建築物基準 | - | |
| 共用施設設備 | 食堂、浴室、キッチンコーナー、娯楽室、脱衣室、トイレ | |
| 運営事業者名 | 株式会社パワーズアンリミテッド | ||||
|---|---|---|---|---|---|

よくある質問
- Q
リリィパワーズレジデンス三鷹北野けやき館の現在の空室状況が知りたいのですが?
- Aリリィパワーズレジデンス三鷹北野けやき館の空室状況を確認したい場合は、こちらより最新の空室状況を確認ください。
- Q
リリィパワーズレジデンス三鷹北野けやき館の周辺の老人ホーム・介護施設も掲載していますか?
- A安心介護紹介センターではリリィパワーズレジデンス三鷹北野けやき館の周辺(三鷹市)の施設を62件掲載しています。
三鷹市の老人ホーム・介護施設一覧でご紹介していますので、ぜひご覧ください。
【ご入居を検討される方へ】
複数の施設を比較検討することが施設選びに失敗しないための大切なポイントです。安心介護紹介センターでは、三鷹市周辺の施設から、ご自身の希望やご状況、予算などを踏まえ、ぴったりの施設を提案させていただきます。もしも施設選びに不安を抱えているなら、介護福祉士や高齢者住まいアドバイザー等の資格を有している入居相談員がご相談に乗りますので、こちらの入居相談フォームよりお気軽にお問い合わせください。
- Q
リリィパワーズレジデンス三鷹北野けやき館の費用はいくらぐらいかかるの?
- Aリリィパワーズレジデンス三鷹北野けやき館に入居した場合にかかる費用は、以下の通りです。
入居一時金: 15.0万円
月額費用: 19.4万円
なお、リリィパワーズレジデンス三鷹北野けやき館がある三鷹市の相場は以下のようになっています。
入居一時金: 平均944.6万円
月額利用料: 平均37.4万円
ご予算などを踏まえて三鷹市周辺で老人ホーム・介護施設の比較検討をされたい場合は、安心介護紹介センターまでお問い合わせください。経験豊富な入居相談員が、ご状況や希望条件、金銭的な事情などを踏まえて、あなたにぴったりの施設をご提案させていただきます。
- Q
リリィパワーズレジデンス三鷹北野けやき館の入居条件は?
- Aリリィパワーズレジデンス三鷹北野けやき館に入居する場合、下記の条件に当てはまっている必要があります。
年齢: 60歳以上
要介護度: 要介護1,要介護2,要介護3,要介護4,要介護5
認知症: -
医療提供体制や在籍している有資格者の人数といった詳しい条件については、リリィパワーズレジデンス三鷹北野けやき館の施設情報ページをご覧ください。
三鷹市(東京都)の費用相場
| 入居時料金あり | 入居時料金 | 月額料金 |
|---|---|---|
| 平均値 | 944.6万円 | 37.4万円 |
| 中央値 | 432.3万円 | 32.2万円 |
| 入居時料金なし | 月額料金 |
|---|---|
| 平均値 | 33.6万円 |
| 中央値 | 29.8万円 |





