- 外観
- 自宅のような安心感のある建物
- ダイニング
- すっきりとした清潔感があるダイニング
- 休憩スペース
- 季節に応じて作った貼り絵の作品を展示されている明るいスペース
- 居室
- プライバシーがしっかりと守られた居室
- 口コミ
- 料金プラン
- 施設の紹介
- 写真
- アクセス
- 空室状況
- 個室
- 要確認
- 料金
- 住所
- 山梨県山梨市下井尻894
- アクセス
- JR中央本線 東山梨駅 徒歩約12分/車で約5分
- 入居条件
- 要支援1要支援2要介護1要介護2要介護3要介護4要介護565歳以上認知症 受け入れ可保証人 相談可終身利用可能全国から入居可
- こだわり
- 夜間有人居室トイレ付き看取り対応可機械浴・特殊浴理容サービスカラオケあり禁煙レクリエーション充実
- この施設のおすすめ・特徴
- 24時間の医療介護体制
- 初期費用が抑えられた料金設定
- 安心快適な居住空間
山梨の憩の口コミ・評判
- 掲載基準について
- お寄せいただいた口コミは、信頼性及び品質の確保・向上のため、審査の上で承認した内容を掲載しております。
- 投稿日:
- 2026年02月26日
| ご入居者の状態 | ||||||
|---|---|---|---|---|---|---|
| 年齢 | 性別 | 続柄 | 要介護度 | ADLの状態 | 認知症の度合い | 既往歴 |
| 58歳 | 男性 | 父母 | 要介護4 | 寝たきり | なし | 麻痺 |
- 施設・入居者の雰囲気
- 5
施設内は明るい雰囲気です。行く度に様々なスタッフの方々が自主的に声をかけてくださるので、大事な家族を安心してお願いできます。
- スタッフの雰囲気
- 5
いつも声をかけてくださいます。施設長のみならず、看護師さんや介護スタッフの方など役職関係なく声をかけてくださいますので安心できます。
- 周辺環境・アクセス性
- 2
周辺道路が狭いので、車の運転には十分注意が必要です。初めて行く時は通り過ぎてしまいそうです。
- 料金・費用の妥当性
- 3
初めは少し高いかなと思いましたが、サービスやお部屋の中にあった妥当な金額だと思います。
- 居室・共用設備
- 4
あたたかくて清潔な印象で良いと思います。広さもあり年始に数人で訪問した時も十分でした。
- 介護・看護・医療サービス
- 5
-
- 入居の決め手
寝たきりに近いため、今の状態でもきめ細やかに対応できる設備であるかを最重視しました。
山梨の憩の料金プラン
基本プラン
- 入居時
- 0円
- 月額料金
- 141,740円
| 入居時費用内訳 | |
|---|---|
| 入居一時金 | 0円 |
| その他 | 0円 |
| 月額料金内訳 | |
|---|---|
| 賃料 | 66,500円 |
| 管理費 | 39,600円 |
| 食費 | 35,640円 |
| 水道光熱費 | 0円 |
| 上乗せ介護費 | 0円 |
| その他 | 0円 |
ここに記載の料金は、参考価格です。正確な料金は施設にお問い合わせください。
料金プランに関する説明
医療費、オムツ代、介護保険負担分等が別途かかります。
居室設備
ナースコール(ベッドサイド・トイレ)、トイレ、洗面、収納
体験入居・ショートステイ
| 体験入居 | 体験入居の内容 |
|---|---|
| あり | 一泊二日11000円(税込) |
| ショートステイ | |
| - |

この施設を見た人がよく見る近隣施設
山梨の憩とは
山梨の憩(旧名称:あい山梨市)は、緑に囲まれた自然豊かな地に2013年3月に開設。
最寄り駅から車で5分と利便性にも優れた環境は、施設に入居しても、家族や友人とのつながりを持ち続けることができる施設です。
自宅で過ごしているようなアットホームな住宅環境は、小規模施設だからこそ可能なサービスを実現。
スタッフの細やかなケアは、入居者一人ひとりに合ったケアを提供。
介護度や健康状態に加えて、入居者の価値観や意思を尊重したかかわりを大切にしてケアが行われています。
入居者がゆったりと穏やかな暮らしができるように、さまざまな工夫をしながら、質の高いサービス提供が行われています。
山梨の憩のおすすめ・特徴
- 24時間の医療介護体制
昼夜問わず安心して過ごせるように、医療と介護の両面で24時間安心できる支援が行われています。
日中は看護師が常駐し、入居者の健康管理や健康に関する悩みや相談にのれるように体制が整えられています。また夜間は、介護スタッフが24時間常駐。
夜間の巡回による安否確認や不安や悩みごとに関する相談にすぐに対応できるようになっています。入居者の体調の変化や急変時に素早く対応できるように、提携協力医療機関との連携も密に行われ、緊急時も迅速な対応ができるようになっています。
このような体制により、終末期の看取りケアの対応や、専門的な医療処置が必要な場合にも対応可能は幅が広く、多くの方に入居してもらうことが可能な施設となっています。 - 初期費用が抑えられた料金設定
多くの方に利用してもらえるように料金設定にも配慮されています。
たとえば、入居時に必要になる入居保証金不要の設定のため、初期費用の負担を抑えることができます。
初期費用が少ない設定となっているため、施設への入居に悩んでいる方にも、気軽に入居してもらうことができます。病院から退院を迫られているけれども、自宅退院は難しくて困っているという方にもおすすめです。
月々の定額料金は介護料金にて変わってきますが、わかりやすい料金表示やスタッフへの相談も行えるため、入居前に費用面での不安を解決することができます。 - 安心快適な居住空間
安心と快適さを意識した居住空間にも配慮されています。
入居者の住宅としての機能ももつ、各居室は全室個室でプライベート空間を確保。
一人でゆっくりとした時間を過ごすことができる環境が整えられています。
居室にはトイレも完備されており、入居者が安心して利用できる設備が整えられています。
自宅で過ごすような落ち着いた空間を大切にしながら、安心して過ごせる施設としての役割も大切に、入居者のよりよい暮らしをサポートしています。また、浴室も入居者の介護度や身体状況に合わせた複数のタイプが完備されています。
寝たきりの入居者にも入浴時間を楽しんでもらえるように、機械浴や特殊浴もあるため、すべての入居者が安心して入浴できます。
入居条件
その他条件
年齢問わず、下記のいずれかに該当する方
要介護2以上、もしくは障害区分4以上の方、胃ろう、インシュリン、インターフェロン投与などの医療処置が必要な方、人工呼吸器装着、頸髄損傷、パーキンソン病、ALS(筋萎縮性側索硬化症)、末期悪性腫瘍、等の指定難病疾患の方等
認知症であるもののうち、少人数による共同生活を営むことに支障がないものとし、次のいずれかに該当する者は原則対象から除かれる。
次のいずれかに該当される方
「自傷行為のある方」「他害行為のある方」「認知症の原因となる疾患が急性の状態にある方」
医療・看護面の受け入れ体制
医療面の受け入れ
認知症の症状別受け入れ
感染症の受け入れ
山梨の憩の職員体制
緊急時の対応
入居者の身体の変化や急変時に素早く対応できる体制を整えられています。
24時間介護スタッフの常駐で、入居者が安心して過ごせる環境と複数の協力医療機関との連携で、入居者の安心につながっています。
機能訓練指導員の有資格者数
| 理学療法士 | - |
|---|---|
| 作業療法士 | - |
| 言語聴覚士 | - |
| 看護師または准看護師 | 4人 |
| 柔道整復師 | - |
| あん摩マッサージ指圧師 | - |
| 鍼灸師 | - |
協力医療機関
| トータルサポートクリニック韮崎 | |
|---|---|
| 診療科目 | 内科 |
| 協力内容 | 往診・日常の健康管理・相談・健康診断の実施
|
| 甲府デンタルクリニック | |
|---|---|
| 診療科目 | 歯科 |
| 協力内容 | 歯や義歯についての相談と訪問歯科診療 |
山梨の憩の生活情報
食事
管理栄養士によるバランスの取れた食事
季節を感じる食事メニュー
バリエーション豊富な献立
| 食事する場所 | ダイニング・食堂 |
|---|---|
| 調理する場所 | 施設内厨房 |
| 治療食・制限食の個別対応 | 個別対応 可能 刻み食 可能 ミキサー食 可能 治療食 |
| 食事の説明 | 食事は管理栄養士による栄養バランスのとれた料理を提供。
日常の食事以外にも、旬の食材を使い、季節を感じられる特別メニューやイベント食などを企画。
また、体調不良や基礎疾患、嚥下や咀嚼力が低下した入居者には、それぞれの身体状況に合わせたメニューを提供。
このほか、食物アレルギーのある入居者の対応も可能。
|
1日の流れ
- 6:00
起床
- 8:00
朝食
- 9:00
体操
- 10:00
切り絵など
- 12:00
昼食
- 14:00
お散歩
- 15:00
おやつ
- 16:00
カラオケなど
- 17:00
お風呂
- 18:00
夕食
- 20:00
就寝
生活に関するその他情報
| 外出 | 可 | 外泊 | 可 |
|---|---|---|---|
| 喫煙 | 不可 | 飲酒 | - |
| 入浴:回数 | - | 入浴:備考 | - |
| 玄関の施錠 | - | ||
山梨の憩の外観・内観・居室
自宅のような安心感のある建物
すっきりとした清潔感があるダイニング
季節に応じて作った貼り絵の作品を展示されている明るいスペース
プライバシーがしっかりと守られた居室
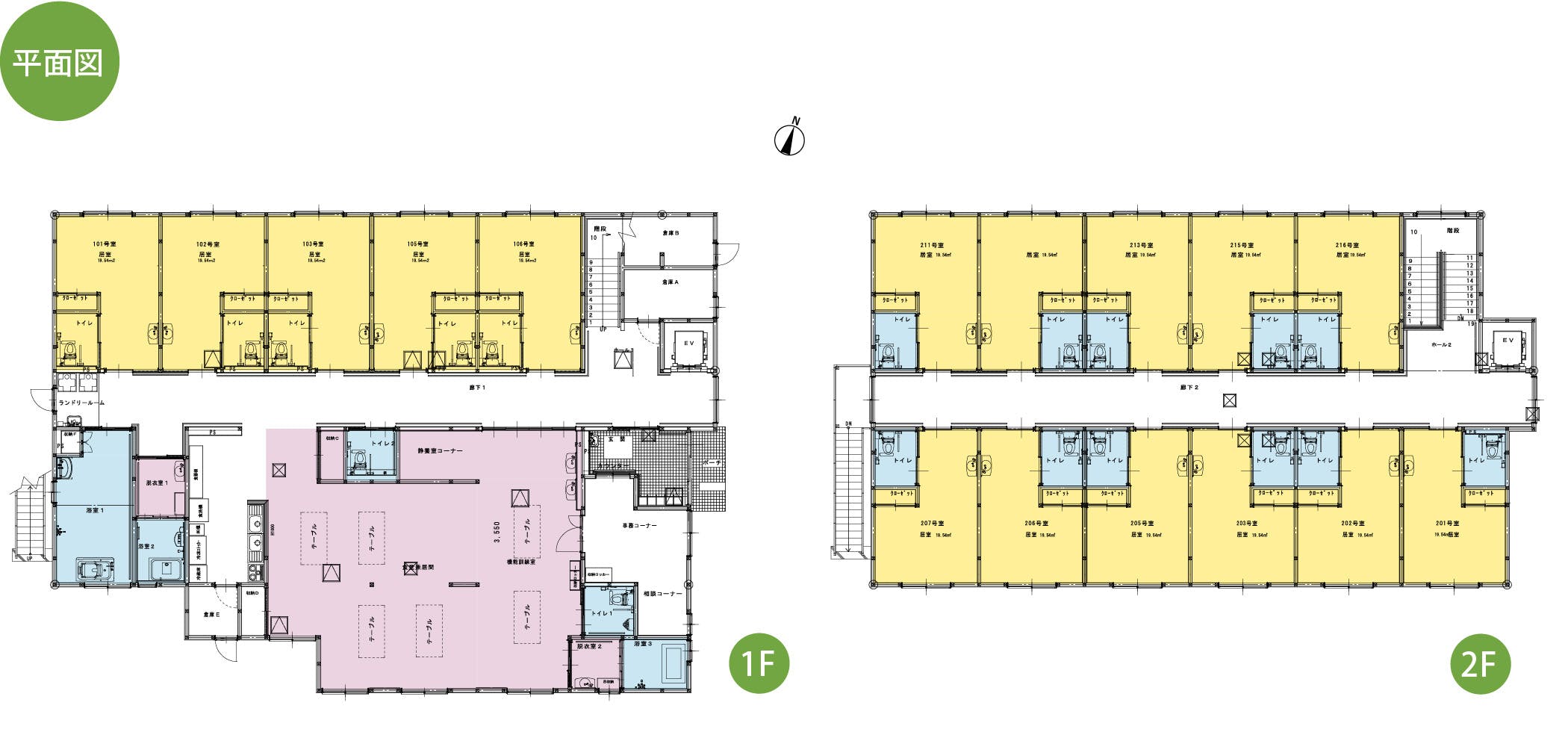
施設全体間取図
所在地(山梨の憩)
| 住所 | 〒405-0003山梨県山梨市下井尻894 |
|---|---|
| アクセス | JR中央本線 東山梨駅 徒歩約12分/車で約5分 【お車をご利用の場合】 雁坂みち/国道140号「八幡橋西詰」信号から県道31号に入り約3分 |
| 駐車場有無 | - |
山梨の憩の近くの施設
施設情報
| 施設名称(ヨミ) | 山梨の憩(ヤマナシノイコイ) |
|---|---|
| 施設所在地 | 〒405-0003 山梨県山梨市下井尻894 |
| 施設種別 | 住宅型有料老人ホーム |
| 建物構造 | 木造 |
| 入居定員 | 16名 |
| 開設年月日 | 2023年05月01日 |
| 介護事業所番号 | - |
| 損害賠償保険 | 加入 |
| 地上階・地下階 | 2階建 |
| 敷地面積 | 609.69㎡ |
| 延床面積 | 617.92㎡ |
| 居室総数 | 16室 |
| 居室面積 | 19.54 〜 ㎡ |
| 建築年月日 | 2013年03月05日 |
| 土地の権利形態 | 普通借地契約 |
| 建物の権利形態 | 普通借家契約 |
| 居住契約の権利形態 | 利用権方式 |
| 消火設備 | 消火器、自動火災報知設備、火災報知設備、スプリンクラー |
| 耐火建築物基準 | 準耐火 |
| 共用施設設備 | ・トイレ(男女別/車椅子対応)2ヶ所 ・浴室(個室)3ヶ所 ・リフト浴1ヶ所 ・食堂 ・入居者や家族が利用できる調理設備 ・エレベーター(車椅子対応) |
| 運営事業者名 | 株式会社フロンティアの介護 | ||||
|---|---|---|---|---|---|

※ 掲載している情報は自治体が公表している情報を引用しています。現状とは異なっていたり、情報に誤りがある場合があります。
正確な情報については、施設にお問い合わせください。
出典:山梨県「有料老人ホーム」
よくある質問
- Q
山梨の憩の現在の空室状況が知りたいのですが?
- A山梨の憩の空室状況を確認したい場合は、こちらより最新の空室状況を確認ください。
- Q
山梨の憩は認知症でも、入居することはできますか?
- A山梨の憩では認知症をお持ちの方でも安心して入居することが可能です。
ご状況や認知症の程度をヒアリングし、実際に入居が可能かどうかを安心介護紹介センターの入居相談員がお調べいたしますので、こちらのお申し込みフォームからお気軽にご相談ください。
- Q
山梨の憩の周辺の老人ホーム・介護施設も掲載していますか?
- A安心介護紹介センターでは山梨の憩の周辺(山梨市)の施設を17件掲載しています。
山梨市の老人ホーム・介護施設一覧でご紹介していますので、ぜひご覧ください。
【ご入居を検討される方へ】
複数の施設を比較検討することが施設選びに失敗しないための大切なポイントです。安心介護紹介センターでは、山梨市周辺の施設から、ご自身の希望やご状況、予算などを踏まえ、ぴったりの施設を提案させていただきます。もしも施設選びに不安を抱えているなら、介護福祉士や高齢者住まいアドバイザー等の資格を有している入居相談員がご相談に乗りますので、こちらの入居相談フォームよりお気軽にお問い合わせください。
- Q
山梨の憩の費用はいくらぐらいかかるの?
- A山梨の憩に入居した場合にかかる費用は、以下の通りです。
入居一時金: 0.0万円
月額費用: 14.2万円
なお、山梨の憩がある山梨市の相場は以下のようになっています。
入居一時金: 平均5.9万円
月額利用料: 平均14.1万円
ご予算などを踏まえて山梨市周辺で老人ホーム・介護施設の比較検討をされたい場合は、安心介護紹介センターまでお問い合わせください。経験豊富な入居相談員が、ご状況や希望条件、金銭的な事情などを踏まえて、あなたにぴったりの施設をご提案させていただきます。
- Q
山梨の憩の入居条件は?
- A山梨の憩に入居する場合、下記の条件に当てはまっている必要があります。
年齢: 65歳以上
要介護度: 要支援1,要支援2,要介護1,要介護2,要介護3,要介護4,要介護5
認知症: 受け入れ可
医療提供体制や在籍している有資格者の人数といった詳しい条件については、山梨の憩の施設情報ページをご覧ください。
山梨市(山梨県)の費用相場
| 入居時料金あり | 入居時料金 | 月額料金 |
|---|---|---|
| 平均値 | 5.9万円 | 14.1万円 |
| 中央値 | 5.0万円 | 14.3万円 |
| 入居時料金なし | 月額料金 |
|---|---|
| 平均値 | 14.0万円 |
| 中央値 | 14.1万円 |





