- 外観
- 日当たりのよいアットホームな外観
- 料金プラン
- 施設の紹介
- 写真
- アクセス
- 空室状況
- 個室
- 要確認
- 料金
- 住所
- 山梨県笛吹市春日居町鎮目301番地
- アクセス
- JR中央本線 春日居町駅 車で3分
- 入居条件
- 要支援1要支援2要介護1要介護2要介護3要介護4要介護565歳以上認知症 受け入れ可保証人 必須終身利用可能全国から入居可
- こだわり
- 夜間有人看取り対応可機械浴・特殊浴理容サービスカラオケあり禁煙将棋・囲碁あり
- この施設のおすすめ・特徴
- 入居金0円で住み替えが可能
- 力を入れている若年性認知症介護
- 絆を大切にした目に見えるサービスの提供
笛吹の憩の料金プラン
基本プラン
- 入居時
- 0円
- 月額料金
- 141,740円
| 入居時費用内訳 | |
|---|---|
| 入居一時金 | 0円 |
| その他 | 0円 |
| 月額料金内訳 | |
|---|---|
| 賃料 | 66,500円 |
| 管理費 | 39,600円 |
| 食費 | 35,640円 |
| 水道光熱費 | 0円 |
| 上乗せ介護費 | 0円 |
| その他 | 0円 |
ここに記載の料金は、参考価格です。正確な料金は施設にお問い合わせください。
料金プランに関する説明
その他負担金として、医療費、オムツ代、介護保険負担分等が別途かかります。
居室設備
トイレ・ナースコール・洗面・収納
体験入居・ショートステイ
| 体験入居 | 体験入居の内容 |
|---|---|
| あり | - |
| ショートステイ | |
| - |

この施設を見た人がよく見る近隣施設
笛吹の憩とは
山梨県笛吹市に位置する笛吹の憩(旧名称:あい笛吹)は、ぶどう畑に囲まれた住宅型有料老人ホームです。
経営母体は、中部・関東・関西で80以上の施設を運営する株式会社フロンティアの介護。
最寄りのJR中央線の春日居町駅から車で3分の場所に位置し、天気の良い日は富士山を眺めながら散歩することもできる環境の施設となっています。
入居条件は、原則として65歳以上で、入居時要介護認定が必要ですが、状況に応じて対応することも可能です。
定員は16名。
全室完全個室の居室面積は19.54㎡で、ゆったりと過ごせます。
入居費用はとてもリーズナブルです。
笛吹の憩のおすすめ・特徴
- 入居金0円で住み替えが可能
中部・関東・関西を中心に全国に施設を展開している点を生かした他にはない取り組みが「住み替え自由」のサービスです。
例えば、家族が急な転勤で名古屋から東京に引っ越す場合、名古屋の施設に入居している入居者も家族の転勤先に近い東京の施設に転居することができます。
また、引っ越しにかかる費用負担を出来る限り減らすために、入居金0円で住み替えることが可能です。
もちろん施設の各居室には、調度品が完備されているので少ない荷物で引っ越しができます。
引っ越し先でも今までと共通の施設運営理念を持ったスタッフから、引っ越し前と変わらぬ介護サービスを受けることができるのも魅力の一つ。
そのため受け入れ体制も万全に整えられ、安心して転居ができます。 - 力を入れている若年性認知症介護
長期に渡ることの多い若年性認知症の介護。
施設では「若年性認知症の方の力になりたい」という使命感を持ち、若年性認知症の方の受け入れを積極的におこなっています。
画一的になりやすい施設のケアプランですが、入居者一人ひとりの症状や状態に合わせてプランを立案することで、入居者の安心できる環境づくり・喪失感を感じず達成感を得る・自分の役割の認識の実現を目的としています。
若年性認知症介護は、精神的・肉体的・経済的に家族にとってとても大きい負担となります。
施設では、入居者本人だけでなく、家族にも寄り添うことで「無理をする必要がなくなり、楽になった」「もっと早くから頼めばよかった」という声も寄せられています。 - 絆を大切にした目に見えるサービスの提供
「今日はみんなで一緒に近所の公園へお散歩に行きました!」
「リクエストランチでうなぎを食べたので元気モリモリ!」
「サッカーチームの中学生も参加して大運動会を開催!」
入居者の笑顔あふれるたくさんの写真と共に、その日の施設で起きた出来事を一日一回必ず発信しています。
「楽しそうにしている親を見てホッとした」
「施設の様子がよく分かって助かる」など、家族からも大好評です。
このような発信を通して、施設では入居者はもちろん、その家族との絆を大切にした「目に見えるサービス」の提供を心掛けています。
入居条件
その他条件
原則として65歳以上、入居時要介護者の方が入居条件となっています。
※但し、状況に応じて対応致しますので相談ください。
①単身高齢者世帯
②高齢者+同居者(配偶者/60歳以上の親族/要介護・要支援認定を受けている60歳未満の親族/特別な理由により同居させる必要があると知事等が認める者)
(「高齢者」とは、60歳以上の者または要介護・要支援認定を受けている60歳未満の者をいう。)
医療・看護面の受け入れ体制
医療面の受け入れ
認知症の症状別受け入れ
感染症の受け入れ
リハビリ・機能訓練
施設では、リハビリの専門職である理学療法士が立案したプログラムを日常的に実施し、機能の維持・向上に努めています。
また、音楽療法に力を入れているのも特徴の一つ。
音楽の「情動に直接働きかける」という特性を活かして、みんなで楽器を演奏する集団音楽療法と入居者の気分に合わせて音を奏でる個別音楽療法を取り入れています。
笑顔を見せたり時には涙を流したりする入居者の姿も見られます。
また、回想法を取り入れ当時の思い出を話してもらったり、リズムに合わせて体を動かしてもらったりしながら、聴覚だけではなく「静と動」のバランスを大切にしています。
音楽を通して、運動機能や社会適応能力の回復などを手助けすることが目的です。
緊急時の対応
入居者が安心して過ごすことのできるよう、いつでもスタッフが駆け付けられるケアコールシステムを24時間体制で管理。
また、提携先の病院の医師が定期手に往診を行う他、緊急時も協力医療機関と連携して素早く対応しています。
笛吹の憩の生活情報
食事
| 食事する場所 | ダイニング・食堂 |
|---|---|
| 調理する場所 | 施設内厨房 |
| 治療食・制限食の個別対応 | 個別対応 可能 刻み食 可能 ミキサー食 可能 治療食 |
| 食事の説明 | 管理栄養士が立てた献立を、施設の厨房で厨房スタッフが調理し提供します。
また、施設内の食堂で他入居者と交流を深めながら食事を取ります。
美味しい食事は健康で充実した日々の源と考え、旬の食材を取り入れたり季節ごとの行事食を提供したりと会話の花も咲く食事を心掛けています。
|
レクリエーション
将棋やジェンガ、トランプやカルタ・絵合わせなどのカードゲームまで日常的にさまざまなレクリエーションを行っています。
また、魚釣りや双六などスタッフと入居者でレクリエーショングッズ作りも実施。
壁面制作や季節の行事の飾りなど、入居者も一緒に作成します。
更に、専門の社内研修を履修した介護スタッフによる体操は人気のレクの一つ。
天気の良い日は屋外で体操を行っています。
その他、園芸のレクリエーションも取り入れられており、施設の庭ではキュウリなどを作っています。
園芸には身体機能の維持向上やストレス発散効果もあり、心と体の健康維持として効果的なレクリエーションです。
行事・イベント
四季折々の行事やバラエティに富んだイベントを定期的に開催しています。
その中から新しい趣味を見つけたり、親交を深めたり、季節の移り変わりを味わったりできるよう、年間を通して心躍る楽しい企画が盛りだくさんです。
例えば、1月には新春のお茶会や鏡開き。
ひな祭りやお花見、七夕会やお月見など季節を楽しむ行事が目白押しです。
季節の野菜の収穫や運動会、年賀状作成など趣向を変えた企画もあります。
また、外出にも大変力を入れています。
定期的にショッピングに行くイベントや、秋の行楽や紅葉狩りも実施。
中でも一泊旅行や日帰り旅行は、法人全体で力を入れて取り組むイベントです。
いちご狩りや動物園に行ったり、美味しいものを食べたりしています。
笛吹の憩の外観・内観・居室
日当たりのよいアットホームな外観
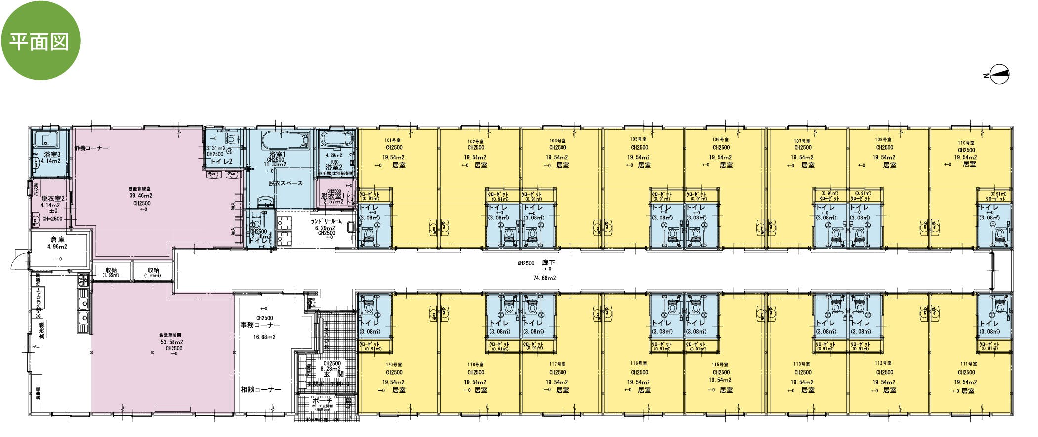
施設全体間取図
所在地(笛吹の憩)
| 住所 | 〒406-0015山梨県笛吹市春日居町鎮目301番地 |
|---|---|
| アクセス | JR中央本線 春日居町駅 車で3分 |
| 駐車場有無 | - |
笛吹の憩の近くの施設
施設情報
| 施設名称(ヨミ) | 笛吹の憩(フエフキノイコイ) |
|---|---|
| 施設所在地 | 〒406-0015 山梨県笛吹市春日居町鎮目301番地 |
| 施設種別 | 住宅型有料老人ホーム |
| 建物構造 | 木造 |
| 入居定員 | 16名 |
| 開設年月日 | 2013年09月09日 |
| 介護事業所番号 | - |
| 損害賠償保険 | - |
| 地上階・地下階 | 1階建 |
| 敷地面積 | 1778.02㎡ |
| 延床面積 | 552.17㎡ |
| 居室総数 | 16室 |
| 居室面積 | 19.54 〜 19.54㎡ |
| 建築年月日 | - |
| 土地の権利形態 | 普通借地契約 |
| 建物の権利形態 | 普通借家契約 |
| 居住契約の権利形態 | 利用権方式 |
| 消火設備 | - |
| 耐火建築物基準 | - |
| 共用施設設備 | 浴室・食堂兼居間・ランドリールーム・トイレ |
| 運営事業者名 | 株式会社フロンティアの介護 | ||||
|---|---|---|---|---|---|

※ 掲載している情報は自治体が公表している情報を引用しています。現状とは異なっていたり、情報に誤りがある場合があります。
正確な情報については、施設にお問い合わせください。
出典:山梨県「有料老人ホーム」
よくある質問
- Q
笛吹の憩の現在の空室状況が知りたいのですが?
- A笛吹の憩の空室状況を確認したい場合は、こちらより最新の空室状況を確認ください。
- Q
笛吹の憩は認知症でも、入居することはできますか?
- A笛吹の憩では認知症をお持ちの方でも安心して入居することが可能です。
ご状況や認知症の程度をヒアリングし、実際に入居が可能かどうかを安心介護紹介センターの入居相談員がお調べいたしますので、こちらのお申し込みフォームからお気軽にご相談ください。
- Q
笛吹の憩の周辺の老人ホーム・介護施設も掲載していますか?
- A安心介護紹介センターでは笛吹の憩の周辺(笛吹市)の施設を38件掲載しています。
笛吹市の老人ホーム・介護施設一覧でご紹介していますので、ぜひご覧ください。
【ご入居を検討される方へ】
複数の施設を比較検討することが施設選びに失敗しないための大切なポイントです。安心介護紹介センターでは、笛吹市周辺の施設から、ご自身の希望やご状況、予算などを踏まえ、ぴったりの施設を提案させていただきます。もしも施設選びに不安を抱えているなら、介護福祉士や高齢者住まいアドバイザー等の資格を有している入居相談員がご相談に乗りますので、こちらの入居相談フォームよりお気軽にお問い合わせください。
- Q
笛吹の憩の費用はいくらぐらいかかるの?
- A笛吹の憩に入居した場合にかかる費用は、以下の通りです。
入居一時金: 0.0万円
月額費用: 14.2万円
なお、笛吹の憩がある笛吹市の相場は以下のようになっています。
入居一時金: 平均309.4万円
月額利用料: 平均18.7万円
ご予算などを踏まえて笛吹市周辺で老人ホーム・介護施設の比較検討をされたい場合は、安心介護紹介センターまでお問い合わせください。経験豊富な入居相談員が、ご状況や希望条件、金銭的な事情などを踏まえて、あなたにぴったりの施設をご提案させていただきます。
- Q
笛吹の憩の入居条件は?
- A笛吹の憩に入居する場合、下記の条件に当てはまっている必要があります。
年齢: 65歳以上
要介護度: 要支援1,要支援2,要介護1,要介護2,要介護3,要介護4,要介護5
認知症: 受け入れ可
医療提供体制や在籍している有資格者の人数といった詳しい条件については、笛吹の憩の施設情報ページをご覧ください。
笛吹市(山梨県)の費用相場
| 入居時料金あり | 入居時料金 | 月額料金 |
|---|---|---|
| 平均値 | 309.4万円 | 18.7万円 |
| 中央値 | 12.5万円 | 18.0万円 |
| 入居時料金なし | 月額料金 |
|---|---|
| 平均値 | 17.9万円 |
| 中央値 | 14.2万円 |







