- 外観
- 日当たりのよい外観
- 料金プラン
- 施設の紹介
- 写真
- アクセス
- 空室状況
- 個室
- 要確認
- 料金
- 住所
- 山梨県甲斐市下今井2689番地3
- アクセス
- JR中央本線 塩崎駅 車で6分
- 入居条件
- 要支援2要介護1要介護2要介護3要介護4要介護565歳以上認知症 受け入れ可保証人 必須終身利用可能全国から入居可
- こだわり
- 夜間有人居室トイレ付き看取り対応可機械浴・特殊浴理容サービスカラオケあり禁煙レクリエーション充実
- この施設のおすすめ・特徴
- 周辺施設が充実
- 入居可能な医療体制が充実
- 災害時・緊急時の防災対策
下今井の憩の料金プラン
基本プラン
- 入居時
- 0円
- 月額料金
- 141,740円
| 入居時費用内訳 | |
|---|---|
| 入居一時金 | 0円 |
| その他 | 0円 |
| 月額料金内訳 | |
|---|---|
| 賃料 | 66,500円 |
| 管理費 | 39,600円 |
| 食費 | 35,640円 |
| 水道光熱費 | 0円 |
| 上乗せ介護費 | 0円 |
| その他 | 0円 |
ここに記載の料金は、参考価格です。正確な料金は施設にお問い合わせください。
料金プランに関する説明
その他負担金として、医療費、オムツ代、介護保険負担分等が別途かかります。
居室設備
トイレ・洗面・ナースコール・収納

この施設を見た人がよく見る近隣施設
下今井の憩とは
下今井の憩(旧名称:あい下今井)は、社会福祉法人フロンティアが運営する住宅型有料老人ホームです。
2013年2月に開設。
クリーム調の木造建築の建物には、およそ20平米の個室が18室完備されています。
周辺施設は、公園や飲食店が点在している便利な立地。
アクセスも抜群で、JR中央線の塩崎駅から車で6分の距離に位置しています。
入居一時金不要で、看取り終末期ターミナルケアに対応している施設。
機械浴や特殊浴も用意されているため安心して生活を送れます。
喀痰吸引登録特定行為事業者の認定を受けているため胃ろう・口腔内喀痰吸引・鼻腔内喀痰吸引などの医療行為の実施が可能。
他にもストーマや尿バルーンのような医療行為が必要な方の入居が可能となっています。
下今井の憩のおすすめ・特徴
- 周辺施設が充実
施設から車で5分の距離に公園が3カ所あります。
鳥ケ池芝生公園・響が丘第1公園・響が丘中央公園があり、ゆったり過ごすのにぴったりな場所。
公園の近くにコンビニもあるので、食事を摂る際も不便しない立地となっています。カフェや飲食店も点在しており、本屋もあります。
車で5分ほどの距離に施設が多くあるので、入居者家族や友人が施設を訪れた際は娯楽に困らない場所に位置している施設です。 - 入居可能な医療体制が充実
持病がある方や医療行為が必要な方でも入居できる、医療体制が整っています。
例えば糖尿病を患っておりインスリン注射が必要な方や、人工肛門をつけている方・在宅酸素療法が必要な方も入居可能となっています。
他には尿バルーン・ペースメーカーをつけている方にも対応。
パーキンソン症・骨粗しょう症・ガンなどの病気を患っている方も入居可能な施設です。
喀痰吸引登録特定行為事業者の認定を受けているため、胃ろう・口腔内喀痰吸引・鼻腔内喀痰吸引などの医療行為の実施が認められています。 - 災害時・緊急時の防災対策
災害時や緊急時は、フロンティアグループのネットワークが活かされます。
グループ内で飲料水や食料の相互提供や避難場所の提供などが行われるよう連携しています。
母体がしっかりしているので、有事の際も孤立せずグループ力を活かして災害時・緊急時の対応が行われます。災害時や緊急時に対応できるよう日頃から研修が実施されています。
防災訓練・防災点検・救命救急講習などを受講。
加えて消防訓練・通報訓練・消火活動訓練・心臓マッサージ・人工呼吸などの講習もあります。
設備面も充実しており、AED( 自動体外式除細動器) を設置・スプリンクラーは各居室に完備されています。このように災害が起きた際も慌てず対応できるよう、スタッフが研修を修受けたり、誘導経路を確認したりとしっかりした防災対策が立てられています。
入居条件
その他条件
原則として65歳以上、入居時要介護者の方が入居条件となっています。
※但し、状況に応じて対応致しますので相談ください。
医療・看護面の受け入れ体制
医療面の受け入れ
認知症の症状別受け入れ
感染症の受け入れ
リハビリ・機能訓練
リハビリテーションの専門家である理学療法士が、入居者一人ひとりに合わせた運動プランを作成しています。
リハビリや機能訓練を強要しないことも特徴のひとつ。
安全で無理のないリハビリプログラムを目標としており、リハビリに対して積極的でない入居者に対しては運動を強要しません。
生活の動作をする上で少し負荷をかけたり、会話を楽しみながら体のストレッチを行うなど工夫しています。
入居者の意見を尊重し、リハビリを行なっている施設です。
浴槽は、特殊浴と機械浴を完備。
介護度が高かったり立位などが難しい入居者でも、入浴が楽しめるように設備が充実しています。
緊急時の対応
定期的に往診を行っている協力医療機関が、緊急時に対応。
また24時間365日体制での介護スタッフの見守りに加え、ケアコールシステムを各部屋すべてに採用しているため、すぐに駆けつけます。
下今井の憩の生活情報
食事
| 食事する場所 | ダイニング・食堂 |
|---|---|
| 調理する場所 | 施設内厨房 |
| 治療食・制限食の個別対応 | 個別対応 可能 刻み食 可能 ミキサー食 可能 治療食 |
| 食事の説明 | 管理栄養士によるバランスのとれた食事が1日3食用意されます。
入居者にとって楽しみの一つとなっている食事。
食欲がなく、なかなか食事が進まない入居者には「体のために頑張って食べましょう」というプレッシャーを与えてしまう声掛けをするのではなく、趣味の話などを積極的に取り入れ楽しみながら食事をしてもらうことを心がけています。 正月などのイベントのある特別な日には、行事食を提供。
入居者の食べたい物のリクエストを調理に採用。
|
レクリエーション
朝食を終えた午前中は、入居者みんなで体操を行います。
午前中に体を動かすことで、体が目覚め良い1日のスタートがきれます。
工作では切り絵を実施。
手先を使うことで認知症予防にもなり、楽しめるレクリエーションです。
スタッフと一緒に楽しみます。
天気の良い日は散歩に出かけることもあります。
外出すると外の空気に触れることができ、気分がリフレッシュされます。
春夏秋冬の季節を感じやすいレクリエーションで、体も動かすことになるので気分転換になり運動不足の解消にもなります。
他にはカラオケを楽しむことができます。
声を出して歌うことはストレス発散にもなりますし、懐かしい音楽を聴いたり歌うことで昔のことを思い出し、楽しい時を過ごすことができるレクリエーションが実施されています。
行事・イベント
鏡開きが1月に行われ、節分・ひな祭り・お花見のような季節のイベントを実施。
ショッピングやお菓子作りも行われ、非日常なことができるので入居者の刺激になるイベントです。
母の日・端午の節句・父の日・七夕飾りづくりも行われ、季節を感じられるイベントを開催。
他には夏祭り・お月見・日帰り旅行・紅葉狩り・クリスマス会を実施。
行事が豊富なため充実した日々を送れます。
毎月のように違うイベントが開催され季節を感じられます。
移りゆく季節を感じ、その時期のイベントを楽しむことは入居者に良い影響を与えます。
下今井の憩の外観・内観・居室
日当たりのよい外観
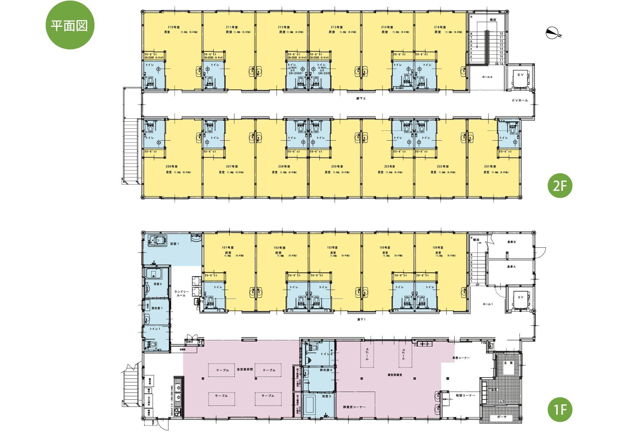
施設全体間取図
所在地(下今井の憩)
| 住所 | 〒400-0105山梨県甲斐市下今井2689番地3 |
|---|---|
| アクセス | JR中央本線 塩崎駅 車で6分 |
| 駐車場有無 | - |
下今井の憩の近くの施設
施設情報
| 施設名称(ヨミ) | 下今井の憩(シモイマイノイコイ) |
|---|---|
| 施設所在地 | 〒400-0105 山梨県甲斐市下今井2689番地3 |
| 施設種別 | 住宅型有料老人ホーム |
| 建物構造 | 木造 |
| 入居定員 | 18名 |
| 開設年月日 | 2012年04月12日 |
| 介護事業所番号 | - |
| 損害賠償保険 | - |
| 地上階・地下階 | 2 階建 |
| 敷地面積 | 1455.0㎡ |
| 延床面積 | 665.12㎡ |
| 居室総数 | 18室 |
| 居室面積 | 19.54 〜 21.99㎡ |
| 建築年月日 | - |
| 土地の権利形態 | 普通借地契約 |
| 建物の権利形態 | 普通借家契約 |
| 居住契約の権利形態 | 利用権方式 |
| 消火設備 | - |
| 耐火建築物基準 | - |
| 共用施設設備 | 浴室・食堂兼居間・ランドリールーム・トイレ |
| 運営事業者名 | 株式会社フロンティアの介護 | ||||
|---|---|---|---|---|---|

※ 掲載している情報は自治体が公表している情報を引用しています。現状とは異なっていたり、情報に誤りがある場合があります。
正確な情報については、施設にお問い合わせください。
出典:山梨県「有料老人ホーム」
よくある質問
- Q
下今井の憩の現在の空室状況が知りたいのですが?
- A下今井の憩の空室状況を確認したい場合は、こちらより最新の空室状況を確認ください。
- Q
下今井の憩は認知症でも、入居することはできますか?
- A下今井の憩では認知症をお持ちの方でも安心して入居することが可能です。
ご状況や認知症の程度をヒアリングし、実際に入居が可能かどうかを安心介護紹介センターの入居相談員がお調べいたしますので、こちらのお申し込みフォームからお気軽にご相談ください。
- Q
下今井の憩の周辺の老人ホーム・介護施設も掲載していますか?
- A安心介護紹介センターでは下今井の憩の周辺(甲斐市)の施設を33件掲載しています。
甲斐市の老人ホーム・介護施設一覧でご紹介していますので、ぜひご覧ください。
【ご入居を検討される方へ】
複数の施設を比較検討することが施設選びに失敗しないための大切なポイントです。安心介護紹介センターでは、甲斐市周辺の施設から、ご自身の希望やご状況、予算などを踏まえ、ぴったりの施設を提案させていただきます。もしも施設選びに不安を抱えているなら、介護福祉士や高齢者住まいアドバイザー等の資格を有している入居相談員がご相談に乗りますので、こちらの入居相談フォームよりお気軽にお問い合わせください。
- Q
下今井の憩の費用はいくらぐらいかかるの?
- A下今井の憩に入居した場合にかかる費用は、以下の通りです。
入居一時金: 0.0万円
月額費用: 14.2万円
なお、下今井の憩がある甲斐市の相場は以下のようになっています。
入居一時金: 平均4.0万円
月額利用料: 平均12.6万円
ご予算などを踏まえて甲斐市周辺で老人ホーム・介護施設の比較検討をされたい場合は、安心介護紹介センターまでお問い合わせください。経験豊富な入居相談員が、ご状況や希望条件、金銭的な事情などを踏まえて、あなたにぴったりの施設をご提案させていただきます。
- Q
下今井の憩の入居条件は?
- A下今井の憩に入居する場合、下記の条件に当てはまっている必要があります。
年齢: 65歳以上
要介護度: 要支援2,要介護1,要介護2,要介護3,要介護4,要介護5
認知症: 受け入れ可
医療提供体制や在籍している有資格者の人数といった詳しい条件については、下今井の憩の施設情報ページをご覧ください。
甲斐市(山梨県)の費用相場
| 入居時料金あり | 入居時料金 | 月額料金 |
|---|---|---|
| 平均値 | 4.0万円 | 12.6万円 |
| 中央値 | 0.0万円 | 12.9万円 |
| 入居時料金なし | 月額料金 |
|---|---|
| 平均値 | 12.4万円 |
| 中央値 | 12.0万円 |








