- 外観
- 落ち着いた雰囲気の3階建ての建物
- エントランス
- バリアフリーのエントランス
- 下駄箱
- 入所者が利用する下駄箱
- ラウンジ
- ゆっくりくつろげるラウンジ
- 食堂兼機能訓練室
- 車椅子でも移動しやすい広い空間
- 食堂兼機能訓練室 空気清浄機
- 常に快適に過ごせるよう完備された空調
- キッチン
- 何時でも利用できるキッチン
- キッチン
- カウンター形式
- 多目的室
- 理美容サービスにも利用できる多目的室
- 相談室
- 家族との面談にも利用できます
- 居室(モデルルーム)
- 個室
- 居室洗面台(モデルルーム)
- 居室に設置されている洗面台
- 居室トイレ(モデルルーム)
- 居室に設置されているトイレ
- 居室(モデルルーム)
- 個室
- 居室(モデルルーム)
- プライバシーが守られた空間
- 居室収納(モデルルーム)
- 居室に設置されている収納
- 居室トイレ(モデルルーム)
- 居室に設置されているトイレ
- 浴室
- 檜風呂の個浴室
- 浴室
- 個浴室
- 浴室
- 個浴室
- チェアー浴室
- 座ったまま入浴できる浴室
- 機械浴室
- 寝たまま入浴できる浴室
- カラオケ機器
- 施設内でカラオケが楽しめます
- エレベーターホール
- 車椅子の向きを変えやすい広い空間
- ヘルパーステーション
- ヘルパーが常駐しています
- 共用トイレ
- 車椅子でも利用しやすい広々としたトイレ
- 厨房
- 入居者に料理を提供しています
- 自動販売機
- 廊下に設置されている自動販売機
- バルコニー
- 晴れた日は日光浴ができる広いバルコニー
- 施設からの眺め
- 晴れた日は富士山が望めます
- 駐車場
- 駐車場完備
- 口コミ
- 料金プラン
- 施設の紹介
- 写真
- アクセス
- 空室状況
- 個室
- 要確認
2025年09月24日時点
- 料金
- 住所
- 神奈川県横浜市戸塚区矢部町2063-1
- アクセス
- ブルーライン 踊場駅 徒歩約6分
- 入居条件
- 自立要支援1要支援2要介護1要介護2要介護3要介護4要介護5認知症 受け入れ可保証人 相談可生活保護不可
- こだわり
- 夜間有人レクリエーション充実
- この施設のおすすめ・特徴
- 穏やかな日常を支える住環境
- 暮らしと四季に寄り添う日々の拠点
- 異変を逃さない安心の仕組み
イリーゼ戸塚の空室確認・見学予約ができます!
まずはお気軽にご相談ください。
イリーゼ戸塚の口コミ・評判
- 掲載基準について
- お寄せいただいた口コミは、信頼性及び品質の確保・向上のため、審査の上で承認した内容を掲載しております。
- 投稿日:
- 2025年05月29日
| ご入居者の状態 | ||||||
|---|---|---|---|---|---|---|
| 年齢 | 性別 | 続柄 | 要介護度 | ADLの状態 | 認知症の度合い | 既往歴 |
| 85歳 | 女性 | 父母 | 要支援2 | 杖が必要 | 軽度 | 心臓病 |
- 施設・入居者の雰囲気
- 5
施設内はとても綺麗で明るく、他の入居者様との交流機会も多そうだなと感じました。
- スタッフの雰囲気
- 5
職員の方も明るく元気な方が多く、とても親切にしてくださりそうでした。安心して親を見ていただけそうなのです。
- 周辺環境・アクセス性
- 5
横浜市営地下鉄ブルーライン「踊場」駅より徒歩約6分(約450m)なので、面会も伺いやすいなと思います!
- 料金・費用の妥当性
- 5
料金は妥当くらいなのかなと思います。他の施設は分かりませんがものすごい高いというわけではないです。
イリーゼ戸塚の料金プラン
基本プラン
- 入居時
- 0円
- 月額料金
- 209,400円
| 入居時費用内訳 | |
|---|---|
| 入居一時金 | 0円 |
| その他 | 0円 |
| 月額料金内訳 | |
|---|---|
| 賃料 | 86,100円 |
| 管理費 | 69,300円 |
| 食費 | 54,000円 |
| 水道光熱費 | 0円 |
| 上乗せ介護費 | 0円 |
| その他 | 0円 |
ここに記載の料金は、参考価格です。正確な料金は施設にお問い合わせください。
料金プランに関する説明
・医療費、おむつなどの消耗品や有料のレクリエーション費は実費
居室設備
トイレ(引き戸)、エアコン、洗面台、ケアコール、介護ベッド

この施設を見た人がよく見る近隣施設
介護付き有料老人ホームの介護保険自己負担額
| 要支援1 | 要支援2 | 要介護1 | 要介護2 | 要介護3 | 要介護4 | 要介護5 | |
|---|---|---|---|---|---|---|---|
| 1割負担 | 5,885円 | 10,066円 | 17,430円 | 19,585円 | 21,836円 | 23,927円 | 26,146円 |
| 2割負担 | 11,770円 | 20,132円 | 34,861円 | 39,170円 | 43,673円 | 47,854円 | 52,292円 |
| 3割負担 | 17,655円 | 30,198円 | 52,292円 | 58,756円 | 65,509円 | 71,781円 | 78,438円 |
イリーゼ戸塚とは
2025年3月に開設した介護付き有料老人ホームであるイリーゼ戸塚は、最寄り駅から徒歩6分という利便性の高い立地にあり、食堂からは富士山を望むことができる恵まれた環境に位置しています。
居室は全室がプライバシーが確保されたトイレ付き個室で、見守りシステムによって利用者の安全や健康状態を把握できるため、不安なく毎日を過ごすことができます。
こうした安心の住まいに加え、毎日の食事も施設内厨房で調理され、栄養士が監修した献立を通じて、体の内側からも健康をサポートしています。
施設内には、介護スタッフが24時間365日常駐しており、日常生活を安定的に支えることができます。
さらに、日中は看護スタッフも配置され、利用者の健康管理にもきめ細やかに対応しています。
イリーゼ戸塚のおすすめ・特徴
- 穏やかな日常を支える住環境
温水洗浄便座付きの使いやすいトイレに加え、介護ベッドやケアコールも完備された居室は、車いすの方でも無理なく過ごせるよう配慮された、安心と快適が共存するプライベート空間です。
入浴設備も充実しており、木曾檜を使用した浴槽をはじめ、各所に手すりを設けた多様な浴室が備えられています。さらに、身体が不自由な方にも安心してご利用いただけるよう、機械浴も設置され、安全性と快適さの両面に配慮した施設環境です。
共用スペースには、晴れた日に富士山を望める開放的なバルコニーもあり、四季の移ろいを感じながら心にゆとりのあるひとときを過ごすことができます。また、施設内にはカラオケ設備などの娯楽も用意されており、日常の中にリフレッシュや交流の機会を生み出しています。
- 暮らしと四季に寄り添う日々の拠点
アクセスの良さが魅力の当施設は、横浜市営地下鉄ブルーラインの踊場駅から徒歩約6分の場所にあり、駅周辺にはバス停も点在しているため、公共交通機関を使った来所も便利にできます。
横浜駅へも電車で約20分とアクセス良好で、大切な人との時間を過ごすにも便利なエリアです。
車を利用する場合も、長後街道が近いため、スムーズに施設へ到着することができます。天候や季節によっては、施設から富士山を望めることもあり、暮らしの中にちょっとした感動を添えてくれます。
また、閑静な住宅街にありながら、周辺には四季折々の自然を感じられる公園も点在しており、心落ち着くひとときを過ごすことができます。
さらに、東京都心へも車でおよそ40分と、外出の選択肢が広がる利便性の高いロケーションです。 - 異変を逃さない安心の仕組み
当施設では、利用者一人ひとりの生活リズムや体調の変化を的確に把握するため、センサー情報を活用した見守りシステムを導入しています。
体動・呼吸・脈拍といったデータを常時把握し、異常が検知された際には即座にスタッフへ通知される仕組みとなっており、よりきめ細やかなケアの提供につなげることが可能です。
夜間もケアの専門技術を備えたスタッフが常駐し、万が一体調に急変があった場合には、協力医療機関と連携しながら迅速かつ的確な対応を実施できます。また、看護スタッフが日々の服薬管理も担っており、飲み忘れや重複投与といったリスクを防ぎながら、個々に適した服薬支援を行っています。
加えて、外部の医療機関や歯科医院による訪問診療のほか、薬局からの薬の配達サービスも個別に手配可能です。
こうした柔軟な体制により、利用者の健康状態やライフスタイルに応じた医療サポートを無理なく取り入れることができます。
入居条件
医療・看護面の受け入れ体制
医療面の受け入れ
認知症の症状別受け入れ
感染症の受け入れ
イリーゼ戸塚の職員体制
介護付有料老人ホームの最低人員基準は「3対1」 人員配置「3:1基準」では、介護付有料老人ホームに入居する要支援2以上の入居者3人に対して1人以上の介護職員または看護職員の配置が義務付けられています。
リハビリ・機能訓練
専門知識を持つ非常勤の機能訓練指導員が在籍し、食堂兼機能訓練室で、身体の状態に合わせた的確なリハビリ支援を受けることが可能です。
緊急時の対応
常時診療を行う体制を確保している協力医療機関と連携し、利用者の緊急時に対処します。
イリーゼ戸塚の生活情報
食事
| 食事する場所 | - |
|---|---|
| 調理する場所 | 厨房 |
| 治療食・制限食の個別対応 | 個別対応 可能 刻み食 可能 ミキサー食 可能 治療食 可能 |
| 食事の説明 | 窓からやわらかな光が射し込む食堂では、季節の移ろいを感じられる献立が提供されています。
|
1日の流れ
- 6:00
起床
- 7:30
朝食
- 9:30
健康体操
- 10:00
入浴
- 12:00
昼食
- 13:00
レクリエーション
- 15:00
ティータイム
- 18:00
夕食
- 21:30
就寝
レクリエーション
認知症予防を目的とした脳の活性化プログラムや、心身にやさしい軽運動など、無理なく取り組めるレクリエーションを豊富に実施しています。
また、習字や囲碁といった活動も取り入れており、利用者一人ひとりが自分の興味に合わせて自由に楽しめる環境です。
行事・イベント
タイムを測っていますが、大体なので皆さん優勝
四季折々のイベントのほかに、毎月2回オンラインコンサートを行っており、音楽を通じて、日々の生活に上質な変化と安らぎを提供しています。
生活に関するその他情報
| 外出 | 可 | 外泊 | 可 |
|---|---|---|---|
| 喫煙 | - | 飲酒 | - |
| 入浴:回数 | - | 入浴:備考 | - |
| 玄関の施錠 | - | ||
イリーゼ戸塚の外観・内観・居室
落ち着いた雰囲気の3階建ての建物
バリアフリーのエントランス
入所者が利用する下駄箱
ゆっくりくつろげるラウンジ
車椅子でも移動しやすい広い空間
常に快適に過ごせるよう完備された空調
何時でも利用できるキッチン
カウンター形式
理美容サービスにも利用できる多目的室
家族との面談にも利用できます
個室
居室に設置されている洗面台
居室に設置されているトイレ
個室
プライバシーが守られた空間
居室に設置されている収納
居室に設置されているトイレ
檜風呂の個浴室
個浴室
個浴室
座ったまま入浴できる浴室
寝たまま入浴できる浴室
施設内でカラオケが楽しめます
車椅子の向きを変えやすい広い空間
ヘルパーが常駐しています
車椅子でも利用しやすい広々としたトイレ
入居者に料理を提供しています
廊下に設置されている自動販売機
晴れた日は日光浴ができる広いバルコニー
晴れた日は富士山が望めます
駐車場完備
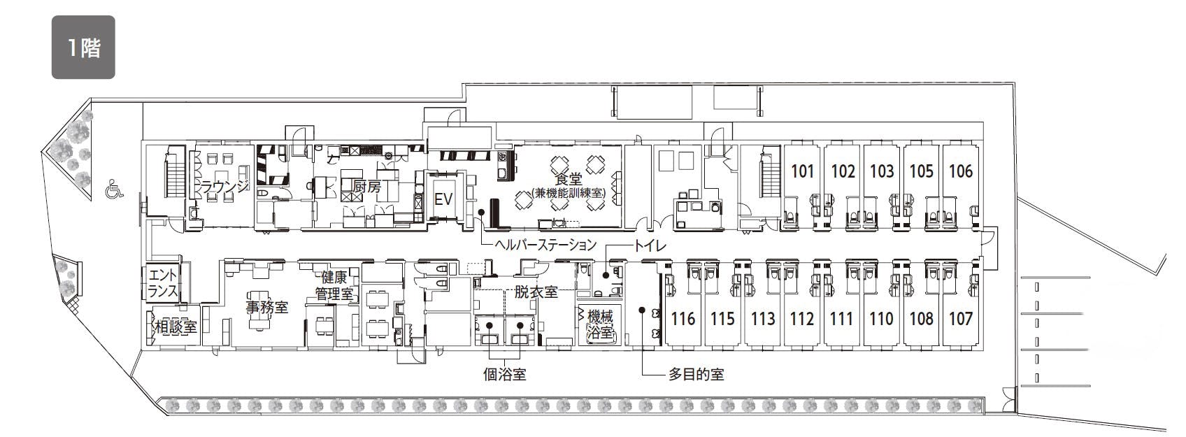
施設全体間取図
所在地(イリーゼ戸塚)
| 住所 | 〒244-0002神奈川県横浜市戸塚区矢部町2063-1 |
|---|---|
| アクセス | ブルーライン 踊場駅 徒歩約6分 【お車をご利用の場合】 長後街道/県道22号「矢沢」交差点より約5分(約1.5km) |
| 駐車場有無 | 有 |
イリーゼ戸塚の近くの施設
施設情報
| 施設名称(ヨミ) | イリーゼ戸塚(イリーゼトヅカ) | |
|---|---|---|
| 施設所在地 | 〒244-0002 神奈川県横浜市戸塚区矢部町2063-1 | |
| 施設種別 | 介護付き有料老人ホーム | |
| 建物構造 | 重量鉄骨造 | |
| 入居定員 | 62名 | |
| 介護事業所番号 | - | |
| 損害賠償保険 | - | |
| 地上階・地下階 | 地上3階建 | |
| 敷地面積 | 1475.2㎡ | |
| 延床面積 | 2309.9㎡ | |
| 居室総数 | 62室 | |
| 居室面積 | 16.5 〜 18.0㎡ | |
| 土地の権利形態 | 普通借地契約 | |
| 建物の権利形態 | 普通借家契約 | |
| 居住契約の権利形態 | 利用権方式 | |
| 建築年月日 | - | |
| 開設年月日 | 2025年03月01日 | |
| 消火設備 | - | |
| 耐火建築物基準 | - | |
| 共用施設設備 | - | |
| 介護機関(生活保護の介護扶助を行う機関)の指定 | 生活保護不可 | |
| 運営事業者名 | HITOWAケアサービス株式会社 | ||||
|---|---|---|---|---|---|

よくある質問
- Q
イリーゼ戸塚の現在の空室状況が知りたいのですが?
- Aイリーゼ戸塚の空室状況を確認したい場合は、こちらより最新の空室状況を確認ください。
- Q
イリーゼ戸塚は認知症でも、入居することはできますか?
- Aイリーゼ戸塚では認知症をお持ちの方でも安心して入居することが可能です。
ご状況や認知症の程度をヒアリングし、実際に入居が可能かどうかを安心介護紹介センターの入居相談員がお調べいたしますので、こちらのお申し込みフォームからお気軽にご相談ください。
- Q
イリーゼ戸塚の周辺の老人ホーム・介護施設も掲載していますか?
- A安心介護紹介センターではイリーゼ戸塚の周辺(横浜市戸塚区)の施設を103件掲載しています。
横浜市戸塚区の老人ホーム・介護施設一覧でご紹介していますので、ぜひご覧ください。
【ご入居を検討される方へ】
複数の施設を比較検討することが施設選びに失敗しないための大切なポイントです。安心介護紹介センターでは、横浜市戸塚区周辺の施設から、ご自身の希望やご状況、予算などを踏まえ、ぴったりの施設を提案させていただきます。もしも施設選びに不安を抱えているなら、介護福祉士や高齢者住まいアドバイザー等の資格を有している入居相談員がご相談に乗りますので、こちらの入居相談フォームよりお気軽にお問い合わせください。
- Q
イリーゼ戸塚の費用はいくらぐらいかかるの?
- Aイリーゼ戸塚に入居した場合にかかる費用は、以下の通りです。
入居一時金: 0.0万円
月額費用: 21.0万円
なお、イリーゼ戸塚がある横浜市戸塚区の相場は以下のようになっています。
入居一時金: 平均348.1万円
月額利用料: 平均27.3万円
ご予算などを踏まえて横浜市戸塚区周辺で老人ホーム・介護施設の比較検討をされたい場合は、安心介護紹介センターまでお問い合わせください。経験豊富な入居相談員が、ご状況や希望条件、金銭的な事情などを踏まえて、あなたにぴったりの施設をご提案させていただきます。
- Q
イリーゼ戸塚の入居条件は?
- Aイリーゼ戸塚に入居する場合、下記の条件に当てはまっている必要があります。
要介護度: 自立,要支援1,要支援2,要介護1,要介護2,要介護3,要介護4,要介護5
認知症: 受け入れ可
医療提供体制や在籍している有資格者の人数といった詳しい条件については、イリーゼ戸塚の施設情報ページをご覧ください。
横浜市戸塚区(神奈川県)の費用相場
| 入居時料金あり | 入居時料金 | 月額料金 |
|---|---|---|
| 平均値 | 348.1万円 | 27.3万円 |
| 中央値 | 21.0万円 | 23.8万円 |
| 入居時料金なし | 月額料金 |
|---|---|
| 平均値 | 36.0万円 |
| 中央値 | 33.3万円 |





