- 外観
- 落ち着いた色合いの1階建ての建物
- キッチン
- ダイニングを見渡すことができるキッチン
- 廊下
- 幅が広く手すりが設置された廊下
- 洗面スペース
- 各所に設置された洗面台
- 共用トイレ
- 十分なスペースと安全に配慮した設計になっているトイレ
- 居室
- プライバシーに配慮した完全個室
- 居室収納
- クローゼット完備した居室
- 浴室
- 安全に入浴できるように設計された浴室
- 料金プラン
- 施設の紹介
- 写真
- アクセス
- 空室状況
- 個室
- 要確認
- 料金
- 住所
- 山梨県韮崎市栄1丁目7番46-2号
- アクセス
- JR中央本線 韮崎駅 車で約5分
- 入居条件
- 要支援1要支援2要介護1要介護2要介護3要介護4要介護565歳以上認知症 受け入れ可保証人 相談可終身利用可能全国から入居可
- こだわり
- 夜間有人居室トイレ付き看取り対応可機械浴・特殊浴理容サービスカラオケあり禁煙レクリエーション充実
- この施設のおすすめ・特徴
- 24時間365日安心のケア体制
- 分かりやすい料金表示
- 快適で安心できる環境
韮崎の憩の料金プラン
基本プラン
- 入居時
- 0円
- 月額料金
- 141,740円
| 入居時費用内訳 | |
|---|---|
| 入居一時金 | 0円 |
| その他 | 0円 |
| 月額料金内訳 | |
|---|---|
| 賃料 | 66,500円 |
| 管理費 | 39,600円 |
| 食費 | 35,640円 |
| 水道光熱費 | 0円 |
| 上乗せ介護費 | 0円 |
| その他 | 0円 |
ここに記載の料金は、参考価格です。正確な料金は施設にお問い合わせください。
料金プランに関する説明
※医療費、オムツ代、介護保険負担分等が別途かかります。
居室設備
トイレ、ナースコール(ベッドサイド・トイレ)、洗面、収納
体験入居・ショートステイ
| 体験入居 | 体験入居の内容 |
|---|---|
| あり | - |
| ショートステイ | |
| - |

この施設を見た人がよく見る近隣施設
韮崎の憩とは
JR中央線韮崎駅から車で5分ののどかな環境の中に韮崎の憩(旧名称:あい韮崎)があります。
天気のいい日は富士山を眺めることもできる場所は、入居者だけでなく、家族や友人の心を癒してくれる環境にあります。
木造2階建ての建物で、入居者は18名の少人数でアットホームな雰囲気の施設です。
自宅のように過ごすことができるように、環境、設備、スタッフとのかかわりなど雰囲気づくりに配慮されています。
また、24時間介護スタッフが常駐しているため、昼夜問わず安心して過ごすことができます。
入居者の一人で過ごす時間を大切にしながら、安心して過ごせるサービスを提供。
安心と快適さを兼ね備えた、心落ち着く施設です。
韮崎の憩のおすすめ・特徴
- 24時間365日安心のケア体制
入居者が安心して過ごせるように、24時間365日スタッフが見守れる体制が整っています。
日中は看護師の常駐で、入居者の健康管理を実施。
オンコール体制があるため、夜間など緊急時も対応することが可能です。
また、複数の協力医療機関との連携が行われているため、体調の変化や病状の悪化など、緊急時にも迅速に対応可能です。
医療体制の充実により、ターミナルケアにも対応しています。このほかにも、特殊な医療処置が必要な入居者も幅広い受け入れが実施されています。
さらに、社会福祉士及び介護福祉士法の規定に基づいた、喀痰吸引登録特定行為事業者として行政に登録。
口腔内の喀痰吸引、鼻腔内吸引、胃ろうまたは腸ろうによる経管栄養の特定行為が可能です。 - 分かりやすい料金表示
介護度によって変わる利用料金もわかりやすく表示されています。
家賃、管理費、食費は一律の料金設定。
加えて、介護度によって変わる料金設定もわかりやすく記載されています。
定額料金以外に必要なものとしては、医療費やおむつ代、そのほか介護負担金があり、こちらは利用した分だけの請求となり、入居者の介護度や身体状況によって変わってきます。
料金面では、入居保証金が不要であることもポイントの一つです。
そのため、初期費用を抑えることができ、費用面での負担が軽減することができます。
入居者と家族が費用面での不安なく利用できるような工夫がされています。 - 快適で安心できる環境
豊かな自然と田園風景が広がる風景は、入居者の心を和ませてくれ、ゆったりと過ごせる環境にあります。
最寄りの駅からは車で5分とアクセスも良く、家族や友の訪問もしやすい場所です。
施設に入居しても、今までと変わらぬ暮らしが送れるように、周囲の環境のほか、施設内の設備にも配慮されています。居室は全室個室で、入居者のプライバシーが守られる空間を完備。
ゆっくり、マイペースに過ごせる環境が整えられています。また、すべての入居者が入浴できるように浴室にもこだわりがあります。
寝たきりになっても入浴ができるように、機械浴や特殊浴が設置されています。
介護度が高くなっても、入浴時間を楽しめるような設備が整っています。
入居条件
医療・看護面の受け入れ体制
医療面の受け入れ
認知症の症状別受け入れ
感染症の受け入れ
韮崎の憩の職員体制
緊急時の対応
入居者が安心して過ごせるように、介護スタッフの24時間常駐で夜間の巡回を実施。
安否確認や生活支援を24時間365日支援しています。
また、協力医療機関との連携と看護師によるオンコール体制もあり、安心の体制が整っています。
韮崎の憩の生活情報
食事
管理栄養士が作った栄養バランスの良い献立
季節を感じるおいしいお食事
食材を豊富に使った料理
| 食事する場所 | ダイニング・食堂 |
|---|---|
| 調理する場所 | 厨房 |
| 治療食・制限食の個別対応 | 個別対応 可能 刻み食 可能 ミキサー食 可能 治療食 |
| 食事の説明 | 管理栄養士による栄養バランスに配慮された食事は、施設内の厨房で厨房スタッフが調理して提供されています。
また、体調が悪い入居者や嚥下、咀嚼力が低下した入居者には、それぞれの身体に合わせた食事などきめ細やかな対応を実施。
食事は施設内にある食堂を利用。
|
1日の流れ
- 6:00
起床
- 8:00
朝食
- 9:00
体操
- 10:00
切り絵など
- 12:00
昼食
- 14:00
お散歩
- 15:00
おやつ
- 16:00
カラオケなど
- 17:00
お風呂
- 18:00
夕食
- 20:00
就寝
生活に関するその他情報
| 外出 | 可 | 外泊 | 可 |
|---|---|---|---|
| 喫煙 | 不可 | 飲酒 | - |
| 入浴:回数 | - | 入浴:備考 | - |
| 玄関の施錠 | - | ||
韮崎の憩の外観・内観・居室
落ち着いた色合いの1階建ての建物
ダイニングを見渡すことができるキッチン
幅が広く手すりが設置された廊下
各所に設置された洗面台
十分なスペースと安全に配慮した設計になっているトイレ
プライバシーに配慮した完全個室
クローゼット完備した居室
安全に入浴できるように設計された浴室
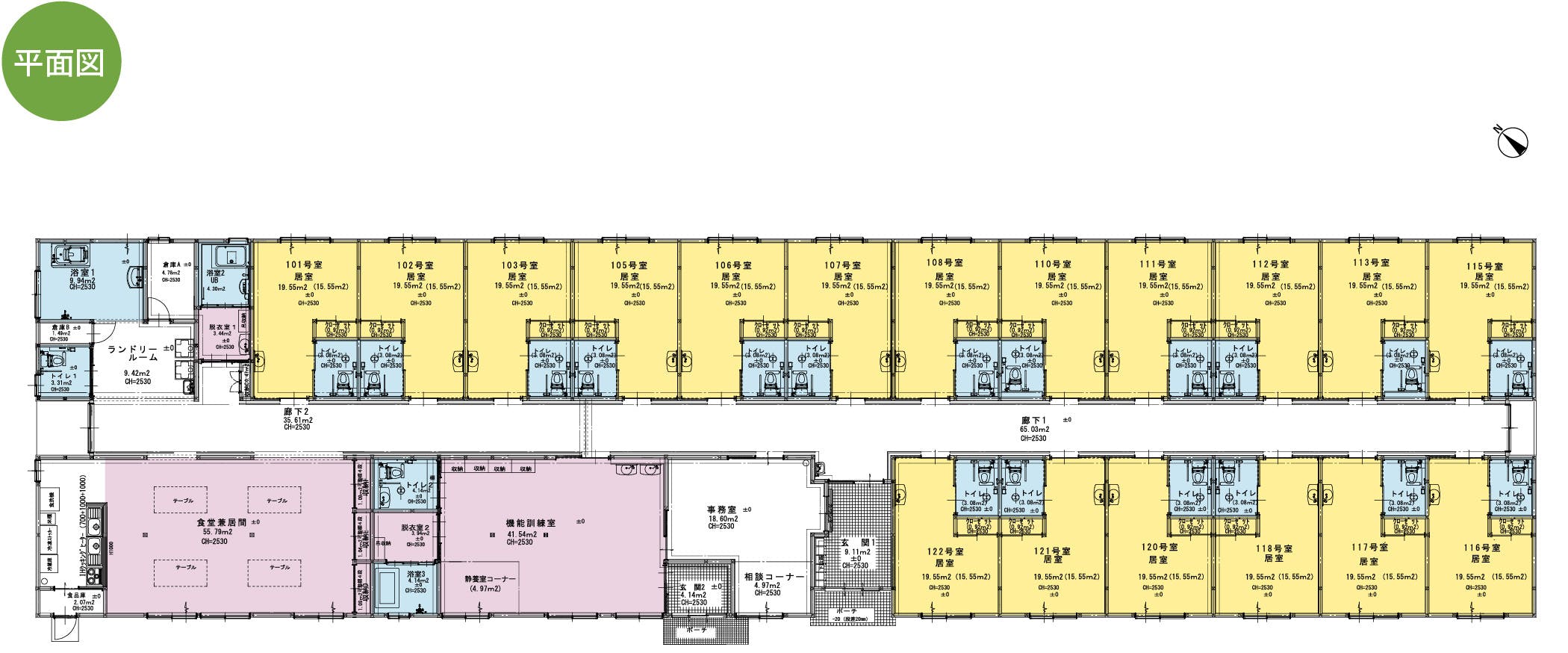
施設全体間取図
所在地(韮崎の憩)
| 住所 | 〒407-0025山梨県韮崎市栄1丁目7番46-2号 |
|---|---|
| アクセス | JR中央本線 韮崎駅 車で約5分 【お車をご利用の場合】 中央自動車道/西宮線 韮崎ICから約7分 |
| 駐車場有無 | - |
韮崎の憩の近くの施設
施設情報
| 施設名称(ヨミ) | 韮崎の憩(ニラサキノイコイ) |
|---|---|
| 施設所在地 | 〒407-0025 山梨県韮崎市栄1丁目7番46-2号 |
| 施設種別 | 住宅型有料老人ホーム |
| 建物構造 | 木造 |
| 入居定員 | 18名 |
| 開設年月日 | - |
| 介護事業所番号 | - |
| 損害賠償保険 | 加入 |
| 地上階・地下階 | 1階建 |
| 敷地面積 | 2233.64㎡ |
| 延床面積 | 915.2㎡ |
| 居室総数 | 18室 |
| 居室面積 | 19.54 〜 ㎡ |
| 建築年月日 | 2016年04月20日 |
| 土地の権利形態 | 普通借地契約 |
| 建物の権利形態 | 普通借家契約 |
| 居住契約の権利形態 | 利用権方式 |
| 消火設備 | スプリンクラー |
| 耐火建築物基準 | - |
| 共用施設設備 | 食堂兼居間、浴室、脱衣室、トイレ、ランドリールーム |
| 運営事業者名 | 株式会社フロンティアの介護 | ||||
|---|---|---|---|---|---|

※ 掲載している情報は自治体が公表している情報を引用しています。現状とは異なっていたり、情報に誤りがある場合があります。
正確な情報については、施設にお問い合わせください。
出典:山梨県「有料老人ホーム」
よくある質問
- Q
韮崎の憩の現在の空室状況が知りたいのですが?
- A韮崎の憩の空室状況を確認したい場合は、こちらより最新の空室状況を確認ください。
- Q
韮崎の憩は認知症でも、入居することはできますか?
- A韮崎の憩では認知症をお持ちの方でも安心して入居することが可能です。
ご状況や認知症の程度をヒアリングし、実際に入居が可能かどうかを安心介護紹介センターの入居相談員がお調べいたしますので、こちらのお申し込みフォームからお気軽にご相談ください。
- Q
韮崎の憩の周辺の老人ホーム・介護施設も掲載していますか?
- A安心介護紹介センターでは韮崎の憩の周辺(韮崎市)の施設を9件掲載しています。
韮崎市の老人ホーム・介護施設一覧でご紹介していますので、ぜひご覧ください。
【ご入居を検討される方へ】
複数の施設を比較検討することが施設選びに失敗しないための大切なポイントです。安心介護紹介センターでは、韮崎市周辺の施設から、ご自身の希望やご状況、予算などを踏まえ、ぴったりの施設を提案させていただきます。もしも施設選びに不安を抱えているなら、介護福祉士や高齢者住まいアドバイザー等の資格を有している入居相談員がご相談に乗りますので、こちらの入居相談フォームよりお気軽にお問い合わせください。
- Q
韮崎の憩の費用はいくらぐらいかかるの?
- A韮崎の憩に入居した場合にかかる費用は、以下の通りです。
入居一時金: 0.0万円
月額費用: 14.2万円
なお、韮崎の憩がある韮崎市の相場は以下のようになっています。
入居一時金: 平均2.7万円
月額利用料: 平均10.7万円
ご予算などを踏まえて韮崎市周辺で老人ホーム・介護施設の比較検討をされたい場合は、安心介護紹介センターまでお問い合わせください。経験豊富な入居相談員が、ご状況や希望条件、金銭的な事情などを踏まえて、あなたにぴったりの施設をご提案させていただきます。
- Q
韮崎の憩の入居条件は?
- A韮崎の憩に入居する場合、下記の条件に当てはまっている必要があります。
年齢: 65歳以上
要介護度: 要支援1,要支援2,要介護1,要介護2,要介護3,要介護4,要介護5
認知症: 受け入れ可
医療提供体制や在籍している有資格者の人数といった詳しい条件については、韮崎の憩の施設情報ページをご覧ください。
韮崎市(山梨県)の費用相場
| 入居時料金あり | 入居時料金 | 月額料金 |
|---|---|---|
| 平均値 | 2.7万円 | 10.7万円 |
| 中央値 | 0.0万円 | 8.9万円 |
| 入居時料金なし | 月額料金 |
|---|---|
| 平均値 | 10.6万円 |
| 中央値 | 8.9万円 |




