- 料金プラン
- 施設の紹介
- アクセス
- 空室状況
- 個室
- 要確認
- 料金
- 住所
- 岐阜県岐阜市六条大溝2丁目14-4
- アクセス
- JR高山本線 岐阜駅 バス停「JR岐阜」乗車「六条大溝町」停留所下車 徒歩5分JR東海道本線 西岐阜駅 車で8分名鉄名古屋本線 岐南駅 車で8分
- 入居条件
- 要支援1要支援2要介護1要介護2要介護3要介護4要介護560歳以上保証人 相談可
- こだわり
- 夜間有人居室トイレ付き看取り対応可機械浴・特殊浴理容サービス
- この施設のおすすめ・特徴
- 完全個室でプライベート空間を確保
- 生活サポート体制充実
- 広々した開放的環境
いちるの料金プラン
基本プラン
- 入居時
- 0円
- 月額料金
- 124,500円
| 入居時費用内訳 | |
|---|---|
| 入居一時金 | 0円 |
| その他 | 0円 |
| 月額料金内訳 | |
|---|---|
| 賃料 | 50,000円 |
| 管理費 | 29,000円 |
| 食費 | 34,500円 |
| 水道光熱費 | 0円 |
| 上乗せ介護費 | 0円 |
| その他 | 11,000円 |
ここに記載の料金は、参考価格です。正確な料金は施設にお問い合わせください。
料金プランに関する説明
・賃料(前払、非課税)
・管理費(共益費、前払、非課税)
・食費(朝食 200円/昼食 500円/夕食 450円、30日毎食摂取時)ソフト食、刻み食、ミキサー食、アレルギー除去食などは要相談
※別途費用
・おむつ代・衛生用品・掃除用品・日用品は自己負担
・月額レンタル用品(任意)→防火カーテン 310円/シーツ 2,550円
・おやつ代 110円/1食
・自費サービス 330円/10分
その他は生活支援サービス費となります。
居室設備
エアコン、照明器具、緊急通報システム、洗面台、温水洗浄機能付きトイレ(引き戸)、液晶テレビ、冷凍冷蔵庫、キャビネット、クローゼット
体験入居・ショートステイ
| 体験入居 | 体験入居の内容 |
|---|---|
| あり | 空室がある場合、1 泊食事付 4,500 円+税 |
| ショートステイ | |
| - |

この施設を見た人がよく見る近隣施設
いちるとは
サービス付き高齢者向け住宅いちるは岐阜県岐阜市にあるサービス付き高齢者住宅です。
周囲は田園が広がる自然豊かな地域で閑静な環境で静かにゆったりとした暮らしができます。
施設は木造2階建てで段差のないバリアフリー設計です。
居室は個室の約18㎡の1Rを用意。
室内にはエアコン・照明器具・緊急通報システム・洗面台・温水洗浄機能付きトイレ・液晶テレビ・冷凍冷蔵庫・キャビネット・クローゼット等を完備しています。
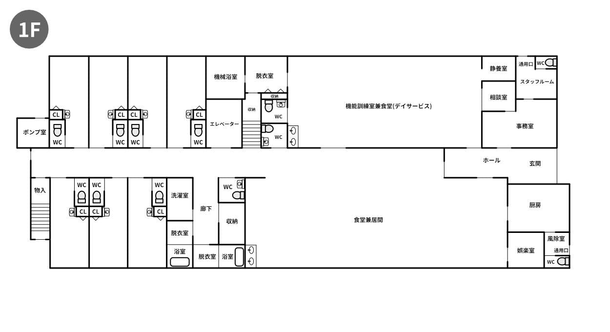
共有スペースには食堂兼談話室・個浴・洗濯室・キッチン・トイレ・エレベーター・娯楽室があります。
広々とした空間で開放的な暮らしを感じることができます。
生活相談サービスや安否確認サービスを実施しており、生活に不安がある方でも安心した生活を送ることができます。
いちるのおすすめ・特徴
- 完全個室でプライベート空間を確保
各室個室でプライベート空間を確保して生活ができます。
居室の広さは約18㎡で30部屋を用意。
各個室にはエアコン・照明器具・緊急通報システム・洗面台・温水洗浄機能付きトイレ・液晶テレビ・冷凍冷蔵庫・キャビネット・クローゼット等を完備。
快適に暮らしができるよう必要な設備を整えています。個室であっても緊急通報システムを完備し、呼び出しの際にはスタッフが駆けつけます。
トイレには手すりや背もたれが設置されているため安全に使いやすいような仕様になっています。
敷金は不要で入居ができるため入居費用の負担が少なく済みます。
自主性や個性を失わないようプライベートを尊重し、理想的なシニアライフを過ごすことができます。
- 生活サポート体制充実
生活相談サポート、安否確認サポートを実施。
食事や生活面での用事がスタッフに気軽に相談ができます。
入居後でも自主性や個性を失わずに暮らすことができ、自分らしい暮らしができるよう配慮。別途、訪問診療や訪問美容、介護保険サービスの利用が可能です。
薬剤は提携薬局があるため管理がしやすい体制を整えています。
サポート体制を整えているため、暮らしに不安を感じることなく安心して暮らせる場所を提供しています。
- 広々した開放的環境
共有スペースは広々した空間で快適に暮らしができる環境を用意しています。
食堂兼談話室・浴室・洗濯室・キッチン・トイレ・エレベーター・娯楽室を完備。食堂兼居間では車椅子の方でも通りやすいようスペースを確保し、ゆったりとした空間を過ごすことができます。
自動販売機やテレビ、新聞などを用意しており、それぞれがすきなようにくつろげる空間を提供しています。娯楽室にはゆったりできるソファを完備しており、入居者同士の交流や家族・友人の訪問に利用が可能です。
お風呂は個浴と機械浴を用意。
機械浴では車椅子の方でも座って入浴ができるよう設備を整えています。
体の負担なく安心して入浴ができます。自宅とはちがう開放的な環境でのびのびとした空間が魅力です。
入居条件
その他条件
単身高齢者世帯または高齢者+同居者(配偶者/60歳以上の親族/要介護・要支援認定を受けている60歳未満の親族/特別な理由により同居させる必要があると知事等が認める方)
医療・看護面の受け入れ体制
医療面の受け入れ
認知症の症状別受け入れ
感染症の受け入れ
いちるの職員体制
緊急時の対応
室内のベッド付近やトイレに緊急通報ボタンを設置。
呼び出しに対して常駐しているスタッフが迅速に対応します。
必要に応じて医療機関の手配を行い、万が一の体制を整えています。
協力医療機関
| 伊東内科 | |
|---|---|
| 診療科目 | 内科、循環器科、小児科、整形外科、心臓血管外科、リハビリテーション科 |
| 協力内容 | 訪問診療 |
| シティタワー診療所 | |
|---|---|
| 診療科目 | 内科、小児科 |
| 協力内容 | 訪問診療 |
| きだいじ歯科医院 | |
|---|---|
| 診療科目 | 歯科 |
| 協力内容 | 訪問診療 |
いちるの生活情報
食事
| 食事する場所 | ダイニング・食堂 |
|---|---|
| 調理する場所 | 厨房 |
| 治療食・制限食の個別対応 | 個別対応 可能 刻み食 可能 ミキサー食 可能 治療食 可能 塩分・タンパク質等の制限 アレルギー除去食 |
| 食事の説明 | 施設内に厨房を完備。
|
所在地(いちる)
| 住所 | 〒500-8357岐阜県岐阜市六条大溝2丁目14-4 |
|---|---|
| アクセス | JR高山本線 岐阜駅 バス停「JR岐阜」乗車「六条大溝町」停留所下車 徒歩5分 JR東海道本線 西岐阜駅 車で8分 名鉄名古屋本線 岐南駅 車で8分 |
| 駐車場有無 | 有 |
いちるの近くの施設
施設情報
| 施設名称(ヨミ) | いちる(サービスツキコウレイシャムケジュウタクイチル) | |
|---|---|---|
| 施設所在地 | 〒500-8357 岐阜県岐阜市六条大溝2丁目14-4 | |
| 施設種別 | サービス付き高齢者向け住宅 | |
| 建物構造 | 木造 | |
| 入居定員 | 30名 | |
| 介護事業所番号 | 30904 | |
| 損害賠償保険 | 加入 | |
| 地上階・地下階 | 地上2階建 | |
| 敷地面積 | 1101.5㎡ | |
| 延床面積 | 1190.6㎡ | |
| 居室総数 | 30室 | |
| 居室面積 | 18.6 〜 18.6㎡ | |
| 土地の権利形態 | 所有権 | |
| 建物の権利形態 | 所有権 | |
| 居住契約の権利形態 | 建物賃貸借契約 | |
| 建築年月日 | 2017年04月30日 | |
| 開設年月日 | 2017年05月15日 | |
| 消火設備 | 消火器、自動火災報知設備、火災通報設備、スプリンクラー | |
| 耐火建築物基準 | 準耐火 | |
| 共用施設設備 | 食堂兼談話室、個浴、洗濯室、キッチン、トイレ、エレベーター、娯楽室、駐車場 | |
| 運営事業者名 | 合同会社一縷 | ||||
|---|---|---|---|---|---|

よくある質問
- Q
いちるの現在の空室状況が知りたいのですが?
- Aいちるの空室状況を確認したい場合は、こちらより最新の空室状況を確認ください。
- Q
いちるの周辺の老人ホーム・介護施設も掲載していますか?
- A安心介護紹介センターではいちるの周辺(岐阜市)の施設を269件掲載しています。
岐阜市の老人ホーム・介護施設一覧でご紹介していますので、ぜひご覧ください。
【ご入居を検討される方へ】
複数の施設を比較検討することが施設選びに失敗しないための大切なポイントです。安心介護紹介センターでは、岐阜市周辺の施設から、ご自身の希望やご状況、予算などを踏まえ、ぴったりの施設を提案させていただきます。もしも施設選びに不安を抱えているなら、介護福祉士や高齢者住まいアドバイザー等の資格を有している入居相談員がご相談に乗りますので、こちらの入居相談フォームよりお気軽にお問い合わせください。
- Q
いちるの費用はいくらぐらいかかるの?
- Aいちるに入居した場合にかかる費用は、以下の通りです。
入居一時金: 0.0万円
月額費用: 12.5万円
なお、いちるがある岐阜市の相場は以下のようになっています。
入居一時金: 平均18.3万円
月額利用料: 平均13.6万円
ご予算などを踏まえて岐阜市周辺で老人ホーム・介護施設の比較検討をされたい場合は、安心介護紹介センターまでお問い合わせください。経験豊富な入居相談員が、ご状況や希望条件、金銭的な事情などを踏まえて、あなたにぴったりの施設をご提案させていただきます。
- Q
いちるの入居条件は?
- Aいちるに入居する場合、下記の条件に当てはまっている必要があります。
年齢: 60歳以上
要介護度: 要支援1,要支援2,要介護1,要介護2,要介護3,要介護4,要介護5
認知症: -
医療提供体制や在籍している有資格者の人数といった詳しい条件については、いちるの施設情報ページをご覧ください。
岐阜市(岐阜県)の費用相場
| 入居時料金あり | 入居時料金 | 月額料金 |
|---|---|---|
| 平均値 | 18.3万円 | 13.6万円 |
| 中央値 | 10.0万円 | 11.8万円 |
| 入居時料金なし | 月額料金 |
|---|---|
| 平均値 | 15.2万円 |
| 中央値 | 11.7万円 |




